128平复古时尚工业风 酷劲十足

2017-09-22 桃弥空间设计 装修33天 装修33天

点上方蓝字可关注  微信号:装修33天

▲ 建筑面积128平,造价40万(软硬装+家电),业主沉迷于上世纪的革命情怀,设计师以年代气息颇浓的工业风为主题,打造酷劲十足的个性住宅,入户玄关采用六角砖与水泥地完美的结合,铁管射灯,水泥墙面,复古的挂钟,再搭配一把红色的换鞋凳,让空间都活跃起来


▲ 从玄关延伸到餐厅的六角砖搭配着水泥地面,将普通的吊顶横梁铲掉表面露出原始面貌,制造出粗狂的视觉效果


▲ 餐厅一套工业风的餐桌椅,主灯是特地寻来的钢架灯,配上涂鸦形式的墙绘,也有点小酒吧的氛围



▲ 餐厨空间一体设计,开放式的厨房,黑色瓷砖工字铺贴,搭配木色与黑色柜体,延续工业风的格调,在视觉上既缩短了走道的距离,也使空间更为紧密一些



▲ 客厅这个多功能柜是满足家里刚需的主力骨,以电视柜为中心,左边是鞋柜,右边是餐边柜



▲ 客厅一体成形的水泥色地面,简洁的吊顶用点光源作空间照明,黑白灰的空间过于冰冷,用一张复古暖色皮沙发,给空间注入温度



▲ 客厅设计了个性吧台,融入简单的西厨功能,顶面风管机用防腐木包裹严实,也非常出效果



▲ 沙发背景是木工用板材结合正真的集装箱房门,让墙面有工业铁皮的效果,搭配涂鸦形式的墙绘,集装箱门是儿童房的入口



▲ 客卫地面通铺花砖,墙面用白色地铁砖工字铺贴,黑色台盆柜搭配护理用品图案的浴帘,空间干净,色调统一



▲ 儿童房没有那么天真烂漫的色调,做旧感的木质地板,背景墙用壁纸铺贴,做出涂鸦效果,另一面木作半高收纳柜,让空间赋有温度,也让整个空间不会过于的饱满



▲ 儿童房靠窗摆放一套书桌椅,木质铁件元素与整体风格相搭配



▲ 整面墙铺贴红砖,赋有年代感,两扇铝制谷仓门,弱化红砖墙的厚重感,散发王者气场



▲ 主卧地面延续工业风的地板,床头的时钟造型,灵感源自于英国大笨钟的表面设计,主卧与主卫之间的墙面开了一个造型窗,让两个空间有一个互通性,也为生活加增添了一丝情调



▲ 主卫地面延伸至墙面通铺黑白六角砖,水泥色的台盆,底部镂空,便于检修,防水防潮



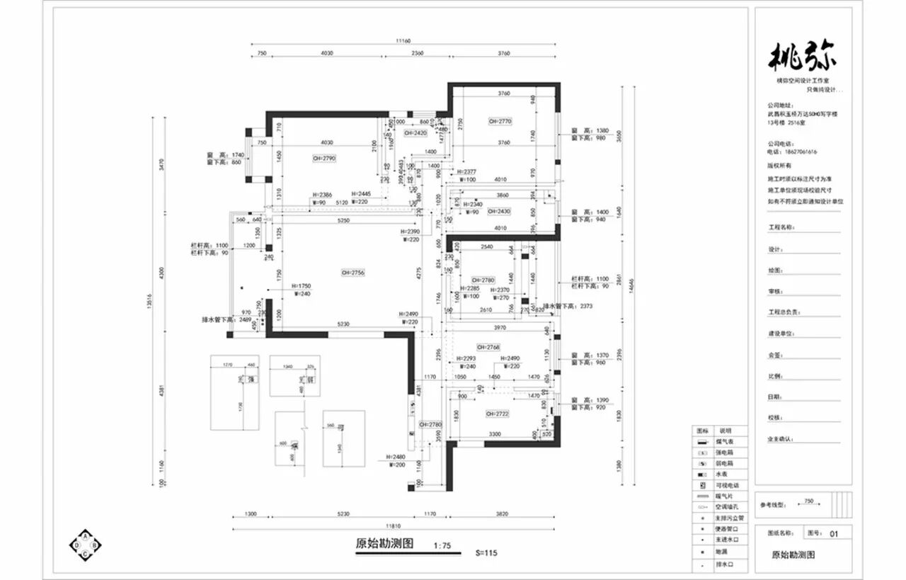
▲ 原始平面图


▲ 平面布置图


设计 | 桃弥空间设计(武汉)

微信:18627061616


欢迎业主、设计师、装修公司免费投稿照片

装修33天商务合作微信:king194316