102平纯净北欧风三室 迴游动线添空间趣味

本空设计 装修33天

点上方蓝字可关注  微信号:装修33天

▲ 建筑面积102平,入户地面通铺灰色瓷砖,右侧衣帽钩,方便挂衣与包包,端景木饰面搭配绿植,给人归家清新感


▲ 原始平面图


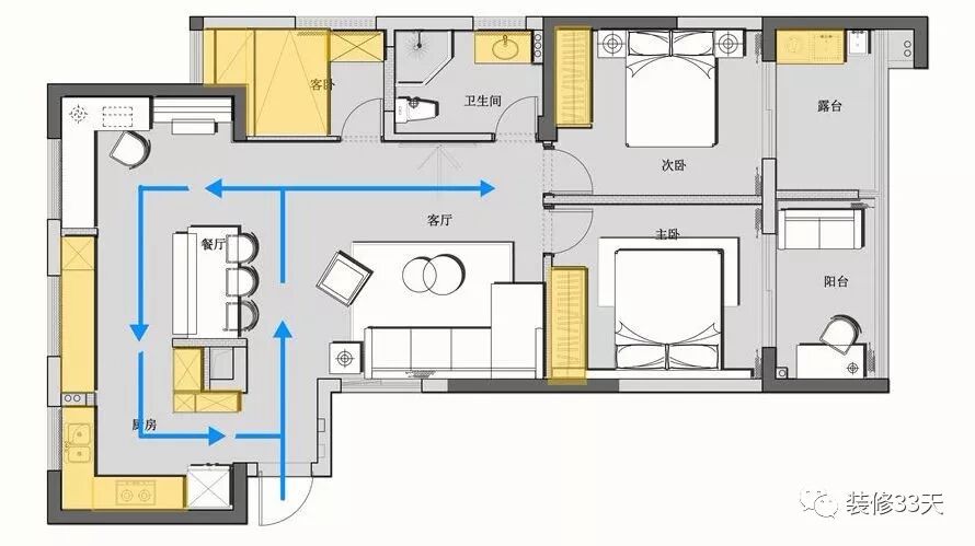
▲ 平面布置图


▲ 入户左侧沿着分体柜通向厨房区域,地面延续灰色瓷砖铺贴,厨房采光窗正好将光线投射到入户,解决原本采光不足的问题



▲ 绕墙柱木作分体储物柜,底部架空,让大柜体不显压抑,并让打扫不留死角,中间留空在进门时方便随手置物



▲ 厨房完全围绕动线设计,完美利用立面空间,定制白色橱柜搭配白色台面,嵌入黑色大型厨电,方便料理操作



▲ 厨房全开放式布局,扩大视觉空间,整体以黑白灰为基调,加长L型橱柜,增添更多储物机能



▲ 一张超大款餐桌,白+木给人一种轻松感,餐椅搭配餐凳,空间不单调也满足更多人聚餐需求



▲ 餐厨区域连通着公领域的休闲书房,给开放式布局增添出更多功能性



▲ 休闲读书角同样有效利用空间,沿墙面木作转角书桌,加放一套电钢琴,上面分格置物架可分类收纳各样小物



▲ 客厅地面通铺木质地板,纯白色立面与天花,搭配白色门片,让空间更显明亮



▲ 深灰色转角沙发搭配深色地毯带给人舒适感,白色茶几组增添北欧元素,白色背景墙上点缀两幅简框画



▲ 木饰面电视背景墙,造型简洁利落,同时让空间有了自然的温度,左右两边隐藏两个不同空间的入口



▲ 打开左侧隐形门片,一组原木色多斗柜搭配一抹绿色,给人一种清新感



▲ 小空间木作榻榻米,打造兼具储物与客卧的多功能空间



▲ 次卧无过多修饰,纯白色空间,搭配原木色简约家居,通过一幅绿植装饰画,赋予空间自然深邃感



▲ 主卧仍然延续白色基调,可置物床背景延伸收纳书架,动物公仔,喵星人装饰画,小盆绿植,白色+木色家具,营造可爱温馨的就寝氛围



▲ 将主卧阳台设计成室内书房,白色书桌搭配线条柔美的埃姆斯椅,铁艺照片墙与置物架,打造充满文艺气息的休闲一隅



▲ 卫生间以灰白为基调,白色架空台盆柜,搭配储物镜柜,可以收纳更多洗漱用品



▲ 灰白空间中给人洁净的感觉,在马桶上方装两层木色层板架,给空间增添一丝温暖色调,同时兼具实用与美观



▲ 设计师与业主合照


设计 | 本空设计(杭州)

微信、电话:13616524525

后台回复「本空」可以看更多作品


欢迎业主、设计师、装修公司免费投稿照片

装修33天商务合作微信:king194316

本空设计其他作品推荐,点击下图查看

89平北欧现代混搭 背景隐形门 阳光地台


关键词推荐(可回复可点击)

灯具谷仓门卡座餐厅开放式厨房

植物隐形门鞋柜设计铺瓷砖经验

花砖六角砖镂空隔断走顶和走地

空调洗衣机衣柜内部阳台晒衣服



装修33天 🏡 实用装修指南

喜欢我们的文章就随手转发到您朋友圈吧

    Read more