110平现代美式三居室 设计感嵌于细节

2018-01-01 标点设计 装修33天 装修33天

点上方蓝字可关注  微信号:装修33天

▲ 建筑面积110平,造价40万(软硬装+家具家电),设计师将原本布局不太合理且压抑的空间,改造出通透明亮,质感舒适的居家环境


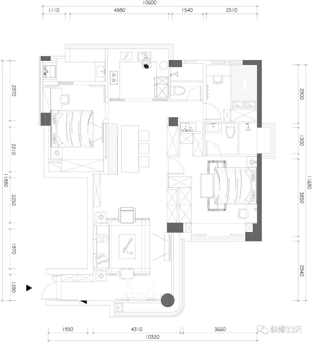
▲ 平面布置图


▲ 灰蓝色乳胶漆墙面,结合半高护墙板作沙发背景,采用尺寸不一的装饰画点缀出艺术气息,打造出简约却又不简单的现代美式风格



▲ 深蓝色布艺铆钉沙发搭配跳色靠枕与金属石材造型台灯,提亮空间的同时增添整体质感



▲ 客厅整体色调搭配纯粹舒适,线条设计简洁明朗,设计师在保证整个客厅视觉空间明朗大气的同时,又将设计感嵌于每一个细节中



▲ 木色地板搭配线性石膏造型天花,温馨别致,设计师将空间开放至最大化



▲ 餐厅与客厅互通,将客厅极佳光线引入餐厅,延续大面积木色地板,让空间更具连续性,给人温暖的视觉感受



▲ 文艺白的大手笔启用让客餐厅显得清新明亮,嵌入式收纳柜预留出了大量过道活动空间,餐厅与厨房的开窗设计则提升了空间互动性



▲ 深色实木餐桌椅结合卡座设计,搭配金色造型吊灯,在纯白的基础色调上,寻找到空间色调平衡点,背景墙玻璃窗洞与卧室连通,让整体空间更为通透,不显压抑



▲ 雅致茶具,金色蜡烛摆件,明黄色跳舞兰,营造质朴宁静又不失时尚感的就餐环境



▲ 厨房地面与墙面通铺大理石瓷砖,不仅提升了整体空间质感,不规则铺贴的手法更凸显了设计感,U型橱柜操作台设计,给居家烹饪提供了更多的活动空间



▲ 儿童房地面通铺原木色地板,墙面采用粉绿治愈色系乳胶漆与米色墙裙包裹,白色百叶帘窗户可以自动调节空间光线,打造出如同童话世界般美好而纯真空间



▲ 小尺寸家具,充满童趣的装饰,设计师在整体空间布局与色调把控上更“自然化”,贴近小朋友的视界



▲ 主卧地面通铺木质地板,复古美式实木家具搭配精美灯饰,利用飘窗设计出多功能休闲一角,整体柔和治愈色系为主卧勾勒出了雅致且安逸的一笔



▲ 木质家具自然纹理,清新鲜切花与床品色调呼应,点缀金属色泽壁灯,营造干净舒适的就寝环境


▲ 卫生间洗手台与淋浴区以玻璃门作为隔断,更方便日常生活中的清洁打理,整个空间用色去繁就简,让原本局促的小空间显得更为清爽敞亮


设计 | 标点设计(深圳)

微信:15112516480   微信公众号:SZ-BDSJ

后台回复「标点」可以看更多作品


欢迎业主、设计师、装修公司免费投稿照片

装修33天商务合作微信:king194316

标点设计其他作品推荐,点击下图查看

现代简美轻奢四室 时尚阳光大宅


关键词推荐(可回复可点击)

灯具谷仓门卡座餐厅开放式厨房

植物隐形门鞋柜设计铺瓷砖经验

花砖六角砖镂空隔断走顶和走地

空调洗衣机衣柜内部阳台晒衣服



装修33天 🏡 实用装修指南

喜欢我们的文章就随手转发到您朋友圈吧