80平现代简约混搭 利用好每个平方

2018-01-26 捌零玖零设计 装修33天 装修33天

装修33天

实用装修指南

关注


▲ 小户型为了更好的利用空间,想要的又比较多,一步一景,进门的景象是这样的,客厅竖了一面半高的墙


▲ 原始结构图


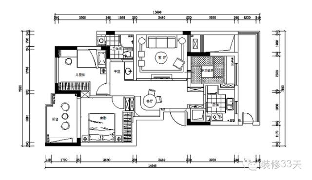
▲ 平面布置图


▲ 进门右手边的厨房门口设计了镜面鞋柜和换鞋凳


▲ 进门左手边是卡座设计餐厅,小清新风格



▲ 这面墙是客厅的电视背景



▲ 换一个角度来看,客厅另外一边靠窗是开放式榻榻米区



▲ 客厅采用了浅蓝色的乳胶漆搭配地板作为护墙板



▲ 各种现代北欧的装饰营造出清新的混搭感



▲ 榻榻米空间升降桌设计休闲区,变成了客厅的延伸



▲ 同时也相当于开放式的书房



▲ 各个空间角落互动连通



▲ 儿童房进门设置了一面紫色的黑板墙



▲ 粉色系的公主房,也考虑到了收纳设计



▲ 主卧把阳台空间纳入进来,扩大了空间感



▲ 主卧阳台



▲ 厨房用小白砖工字型铺贴,墙面配合黑色挂钩,颜值颇高



▲ 卫生间浴帘可以节省空间,实用为主


设计 | 捌零玖零设计(杭州)

联系方式:0571-88271637

欢迎业主、设计师、装修公司免费投稿照片

装修33天商务合作微信:king194316



装修33天

实用装修指南

关注

装修33天 🏡 实用装修指南

喜欢我们的文章就随手转发到您朋友圈吧