135平新中式六口之家 禅意雅致小别院

番喜空间设计 装修33天

装修33天

实用装修指南

关注



▲ 建筑面积135平,造价31万(软硬装+家具家电),入户花园改造成门厅别院效果,地面采用鹅卵石与青砖拼贴,整墙系统柜提供充足收纳


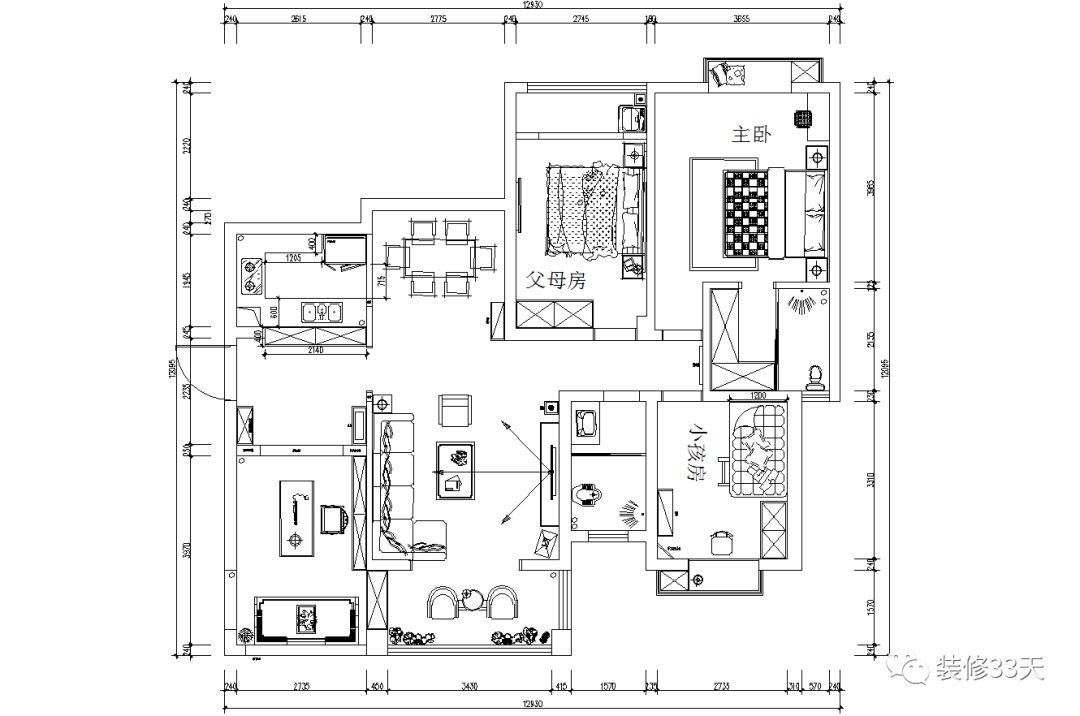
▲ 平面布置图


▲ 利用中式庭院透景的手法,进门看到局部走廊与客厅,整体错落有致



▲ 客厅地面通铺木质地板,充足的采光与留白墙面让空间显的通透宽敞



▲ 采用传统圈椅搭配改良版罗汉床榻,点缀青蓝与鹅黄色调,赋有文化底蕴的同时不显老气



▲ 文化石铺贴出悬浮式极简电视背景墙,摒弃一般传统中式的刻板印象



▲ 大大的阳台延续中式格调,圈椅茶室,惬意午后



▲ 阳台与书房设计木质栏栅折叠门,分割空间的同时做到风格和谐统一



▲ 客厅望向餐厅,互通格局让空间通透明亮,中式实木餐桌椅可同时容纳六人用餐



▲ 走廊木色与中式元素衔接自然



▲ 将L型大阳台的一半纳入书房,利用园林造景手法,使得书房内外自成风景



▲ 留白空间搭配全木色家具,整墙书柜作背景,整体轻盈素雅,充满书香气息



▲ 儿童房以蓝白搭配木色为基调,高低床与飘窗写字台,提高空间使用率



▲ 老人房采用墨绿色软包作床背景,实木大床与顶面木梁吊顶呼应,整体素雅静谧



▲ 主卧地面通铺木质地板,极简吊顶装一盏铜质吊灯,软包大床,休闲飘窗,现代线条结合东方古典元素



▲ 花鸟壁纸搭配整体色系家具与软装


设计 | 番喜空间设计(长沙)

微信:MissMF


欢迎业主、设计师、装修公司免费投稿照片

装修33天商务合作微信:king194316

装修33天

实用装修指南

关注

装修33天 🏡 实用装修指南

喜欢我们的文章就随手转发到您朋友圈吧

    Read more