130平现代简约原木风 平层变身LOFT

辰佑设计 装修33天

点上方蓝字可关注 微信号:装修33天

▲ 本案是顶楼一个边套平层,层高3米6,采光好,利用层高优势,设计出LOFT结构,入户玄关结合楼梯的设计,动线流畅


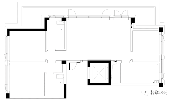
▲ 原始平面图


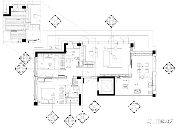
▲ 平面布置图



▲ 将客厅、书房、及阁楼区域形成一个敞开式的大空间,让通透连贯的一气呵成,过道区域做了一排储物背景,既能储藏,又能陈列摆艺术品,让背景不再单调



▲ 木饰面是橡木纹理,中间搭配黑色的壁龛



▲ 透明的楼梯扶手,简洁大气



▲ 设计师放弃了常规的扶手处理,采用长条隔断,打造若隐若现的视觉层次,让空间更为通透



▲ 大大的落地窗,仿佛与室外风景连接,制作成一副独有的“天然风景画”,柔软的布艺沙发,明媚的阳光,慵懒的午后



▲ 整面墙的半开放式木作柜体,嵌入电视机,黑白搭配,具有陈列及储物功能



▲ 黑白灰的色调中,融入原木色的实木茶几组合



▲ 留意到地上的小方格了吗?是新风系统,让室内拥有大自然的清新空气



▲ 利用客厅与楼梯下的空间打造出一个开放式书房,黑色结合原木色的开放式书柜作背景,同时增添的储物功能,楼梯上的阁楼间,也满足了更多的储物需求



▲ 厨房与餐厅空间打通,融为一体,增加了西厨功能,地面与墙面铺贴灰色瓷砖,黑白灰的基调结合原木色的搭配



▲ 原木餐桌搭配造型圆润的餐椅,个性吊灯,营造温馨就餐氛围,餐桌旁边做了一排矮柜,来增加操作台与储物空间



▲ 客卫地面与墙面也是铺贴灰色瓷砖,吊顶上面是阁楼的储物空间,所以层高较低,设计师考虑到防水,所以用了防腐木吊顶,延续整体色调



▲ 次卧地面铺设木地板,乳胶漆大白墙,采用地板上墙做出床背景,两个阅读壁灯错落安装,一副简框画作装饰,做了地台设计,上面直接放床垫,下面用来储物



▲ 木饰面大衣柜,增添了次卧的储物功能



▲ 主卧延续了原木格调,床背景用纹理壁画,木饰面移门大衣柜,强大的储藏功能,阳光照入室内,给人以明亮与淡雅



▲ 主卫简约现代格调,浴帘起灵活隔断作用,卫生间空间不大,但功能齐全


设计 | 辰佑设计(杭州)

微信:vi0619  QQ:6077718

后台回复「辰佑」可以看更多作品


欢迎业主、设计师、装修公司免费投稿照片

装修33天商务合作微信:king194316

辰佑设计其他作品推荐,点击下图查看135平现代极简混搭高级质感三室


装修33天

实用装修指南

关注

装修33天 🏡 实用装修指南

喜欢我们的文章就随手转发到您朋友圈吧