点上方蓝字可关注 微信号:装修33天
▲ 建筑面积108平,总造价40万,设计师以简约美式风为主调,打造温馨居家环境,用大幅装饰画作入户端景
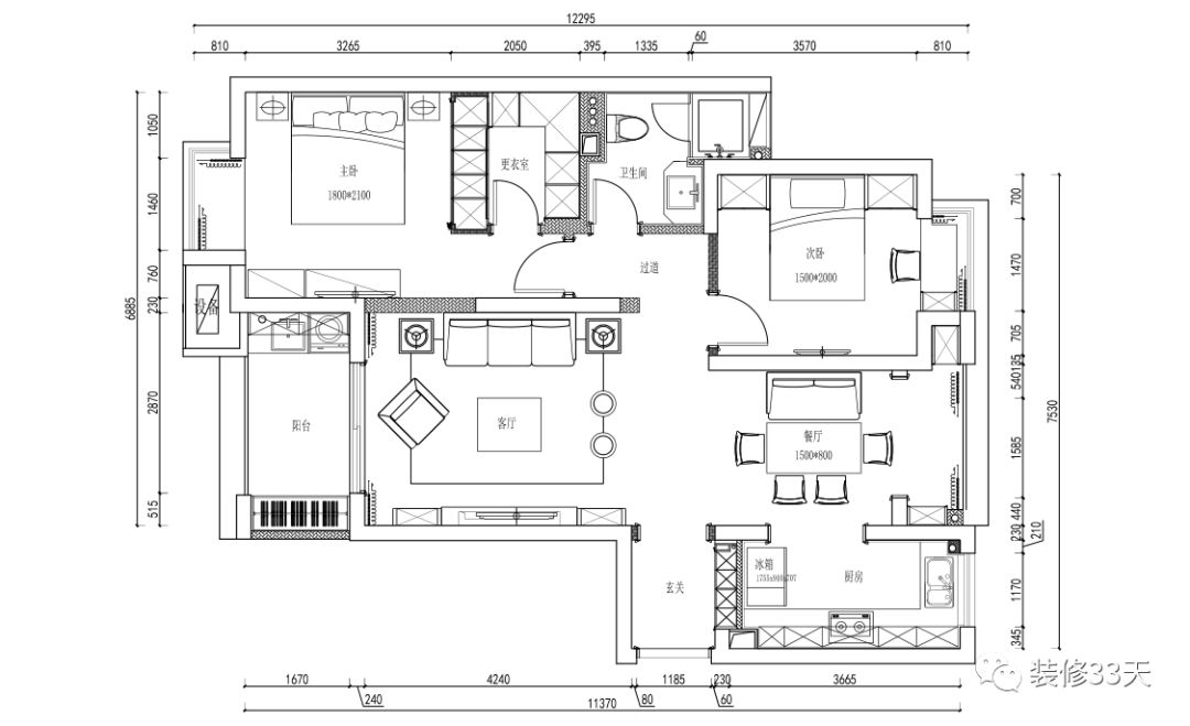
▲ 平面布置图
▲ 客厅地面通铺原木色地板,搭配灰色空间,赋有现代气息的同时不失温馨色彩
▲ 几何图案地毯划分机能场域,简约美式风的家具组合,优雅舒适
▲ 灰色基底背景墙通过石膏线条增添立面层次感
▲ 亮色软装点缀出空间活力
▲ 现场制作的电视背景墙,线条感丰富,呼应石膏线背景墙,结合置物竖柜,美观又实用
▲ 客厅望向餐厅方向,整体空间通透明亮
▲ 餐厅地面延续木色地板与灰色乳胶漆墙面,简约吊顶走一圈石膏线,精致却不繁杂
▲ 拼色窗帘的亮黄色与墙面金色画框呼应,剔透趣味性的吊灯烘托就餐氛围
▲ 深色餐桌搭配精美餐具,一束鲜切花制造浪漫情调
▲ 与餐厅相邻的厨房,黑框玻璃门让室内显的通透,且隔离油烟,灰紫色橱柜耐看实用
▲ 儿童房自然木色温润空间,搭配紫色墙面,打造温馨就寝环境
▲ 白色护墙两边木作对称竖柜,用于空间收纳,点缀壁灯与写真,打造独一无二的背景墙
▲ 主卧延续公领域的简约硬装,搭配沉稳复古木质家具,撞色窗帘带来活跃气氛
▲ 白色大衣柜的门片线条与家具线条呼应,充满利落的层次感,一束小玫瑰妆点空间情调
▲ 卫生间灰砖搭配白色美缝,绿色柜门搭配大地色马赛克背景,金色元素呈现空间精致细节
设计 | 点墨设计(宁波)
微信:dianmosj
媒体转载请注明装修33天并保留设计师联系方式
欢迎业主、设计师、装修公司免费投稿照片
装修33天商务合作微信:king194316
松爷店铺掌柜微信:yejia1701
点墨设计其他作品推荐,点击下图查看162平简约新中式三居 木帘微格古朴雅致
实用装修指南
装修33天 🏡 实用装修指南
喜欢我们的文章就随手转发到您朋友圈吧
Go to "Discover" > "Top Stories" > "Wow"