130平黑白灰木现代时尚四室

TK原创设计 装修33天

点上方蓝字可关注 微信号:装修33天

▲ 使用面积130平,入户分体式架空鞋柜与一组矮柜作储物,美观又实用


▲ 原始结构图



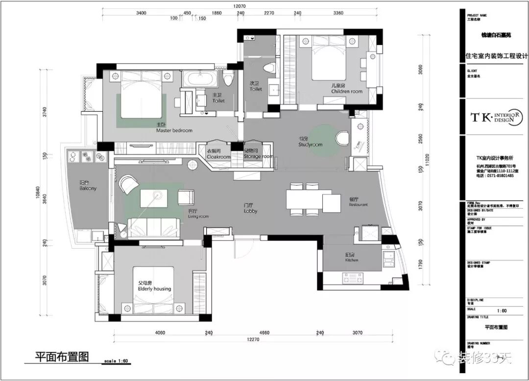
▲ 平面布置图



▲ 餐厨区域以岛台加餐桌的形式呈现,使就餐区域宽敞不少



▲ 餐椅选择棉麻材质,搭配木质台面,彰显出柔和内敛的空间特性



▲ 厨房通铺灰色系仿石瓷砖,搭配白色烤漆橱柜门片,简洁干净



▲ 客厅没有过多的装饰单品去点缀,整体透亮而清爽



▲ 木饰面背景搭配皮质的沙发,营造出简约舒适的视觉氛围



▲ 灰白电视背景墙具有层次感,单椅,茶几摆放随性,麻质毛毯增添舒适度



▲ 客餐厅望向书房,拆除家中不必要的墙体,以开放式的布局带来通透明亮的居家氛围



▲ 灰色系地砖搭配温和的木饰面背景,自然色调将空间变得整洁温馨



▲ 客卫地面与墙面整铺水泥灰瓷砖,墙排马桶,玻璃淋浴房,简单且实用



▲ 次卧主要以居家舒适性为主,淡绿色乳胶漆搭配简洁家具,空间轻松而愉悦



▲ 靠窗木作对称书柜,中间加入写字台,兼具储物与阅读机能



▲ 主卧整体风格低调,深色木地板搭配木饰面床背景,营造舒适的休眠空间



▲ 电视背景墙区域木作一整排储物柜,保证卧室足够的储物空间



▲ 主卫延续客卫格调,水泥灰搭配黑色美缝,加入浴缸与淋浴功能,整体不失时尚与个性


设计 | TK原创设计(杭州) 

电话:15957143882 微信:tk_design

后台回复「TK」可以看更多作品


媒体转载请注明装修33天并保留设计师联系方式


欢迎业主、设计师、装修公司免费投稿照片

装修33天商务合作微信:king194316

松爷店铺掌柜微信:yejia1701


TK原创设计其他作品推荐,点击下图查看130平温馨美式三室 空间借位多个淋浴房


装修33天

实用装修指南

关注

装修33天 🏡 实用装修指南

喜欢我们的文章就随手转发到您朋友圈吧

    Read more