点上方蓝字可关注 微信号:装修33天
▲ 建筑面积100平,总造价25万,采用木质格栅划分玄关空间,一组矮柜解决入户收纳
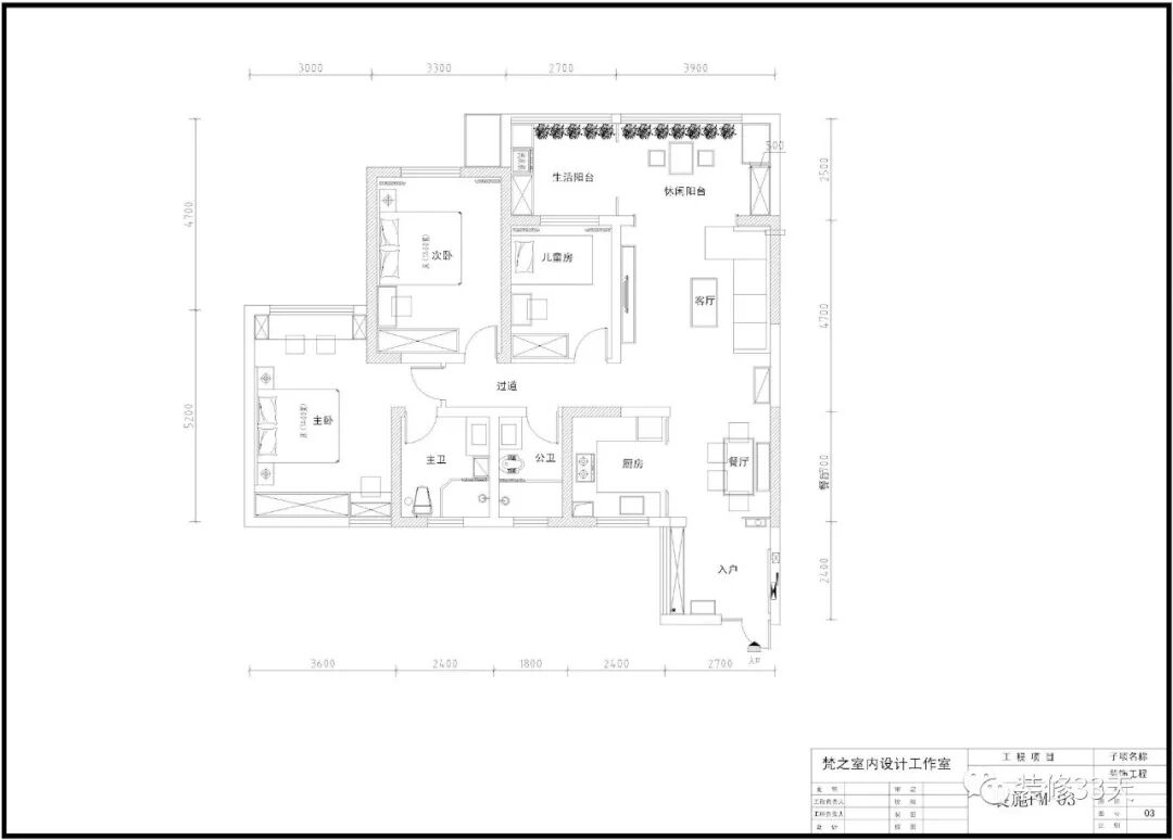
▲ 平面布置图
▲ 入户端景温馨赋有禅意
▲ 餐厅一套原木色餐桌椅,搭配简约中式风的餐桌布置,背景墙上的四个花瓶墙饰与吊灯木质元素构成禅意韵味
▲ 客厅整室的木色地板,搭配浅黄色墙面,简约的吊顶装一盏吸顶灯,空间视野明亮开阔
▲ 木质与布艺结合的家具,给人自然轻松的感觉,一组可移动木色斗柜取代边几
▲ 三幅自然系简框画点缀客厅背景,让空间充满生机
▲ 客厅望向餐厅方向
▲ 阳台打造成佛堂,延续木色与白色的轻盈格调
▲ 厨房通铺浅色瓷砖,木色橱柜门片让料理空间变的轻松赋有质感
▲ 客卧整体朴素简洁,浅色调墙面搭配木质家具,舒适床品呈现无印风舒眠环境
▲ 床两侧放置床头柜与轻便书桌,提供不同的功能需求
▲ 主卧整体与客卧风格呼应,实木家具自然环保,靠窗设计储物阅读区,给空间增添更多机能
▲ 卫生间整体通铺浅色瓷砖,空间色调统一不杂乱,蹲坑与浴帘空间显宽敞
设计 | 梵之设计(成都)
微信:373454377
后台回复「梵之」可以看更多作品
媒体转载请注明装修33天并保留设计师联系方式
欢迎业主、设计师、装修公司免费投稿照片
装修33天商务合作微信:king194316
松爷店铺掌柜微信:yejia1701
梵之设计其他作品推荐,点击下图查看90平简约北欧三室 转角厨房超大空间
实用装修指南
装修33天 🏡 实用装修指南
喜欢我们的文章就随手转发到您朋友圈吧
Go to "Discover" > "Top Stories" > "Wow"