点上方蓝字可关注 微信号:装修33天
▲ 建筑面积230平,软装造价25万(部分业主自购),客厅石纹地砖搭配大张灰调地毯,浅咖色墙面与留白设计,空间精致轻盈
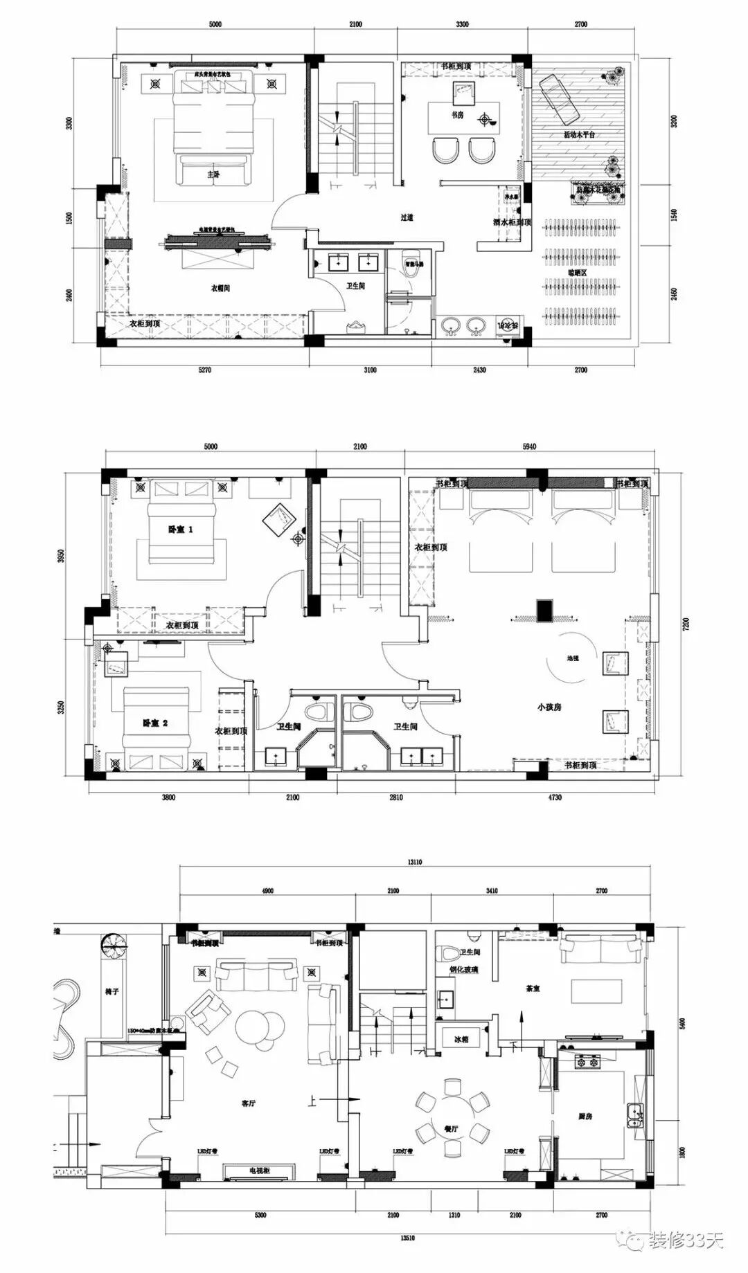
▲ 平面布置图
▲ 卡其色布艺家具搭配圆形茶几组,对称式收纳背景墙,美观实用
▲ 餐厅圆形餐桌搭配铆钉元素餐椅,与圆形吊灯呼应,深绿色墙布背景,蝴蝶翩翩,温暖而馨香
▲ 多功能房地面通铺木色地板,双人写字台特地为两个孩子设计的学习区
▲ 暖色系格子壁纸搭配白色家具,简洁温馨,并在多功能房打造一处娱乐场域
▲ 儿童房木地板搭配墙纸背景,两组对称式竖柜与两张单人床形成中轴对称的就寝空间
▲ 次卧深浅咖色背景墙,搭配简约款大床,一抹黄色提亮空间色调
▲ 主卧采用浅色护墙板搭配深灰色软包设计出层次感床背景,简欧款高背大床搭配对称床头柜,金色元素台灯增加精致细节
▲ 蓝灰色床品营打造舒适静谧的就寝环境
▲ 微风徐徐,吹动白纱帘,阳光印在木质地板上,家就应该如此温馨充满阳光
▲ 移步易景的庭院
▲ 设计师和助理
设计 | 尚舍设计(成都)
微信:151*****530
后台回复「尚舍」可以看更多作品
媒体转载请注明装修33天并保留设计师联系方式
欢迎业主、设计师、装修公司免费投稿照片
装修33天商务合作微信:king194316
松爷店铺掌柜微信:yejia1701
尚舍设计其他作品推荐,点击下图查看蜀中半山度假别墅 欧式大宅休闲温馨
实用装修指南
装修33天 🏡 实用装修指南
喜欢我们的文章就随手转发到您朋友圈吧
Go to "Discover" > "Top Stories" > "Wow"