115平北欧混搭三居 开放式书房有个秋千

力设计 装修33天

点上方蓝字可关注 微信号:装修33天

▲ 建筑面积115平,客厅原木色地坪加铺一张地毯,搭配灰色背景,自然宁静


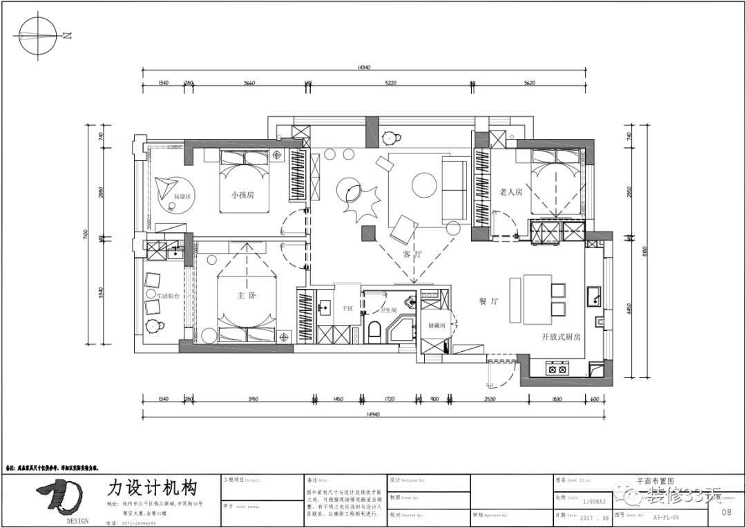
▲ 平面布置图


▲ 爱马仕橙皮质沙发,搭配轻盈的圆形茶几,点缀金属元素,用暖色提亮空间


▲ 利用飘窗打造出休闲一隅,舒适而充满生机


▲ 客厅正对面有一根承重柱,利用原梁柱结构,打造开放式休闲书房


▲ 在书房中安装一个秋千,空间中搭配棉麻藤编制品,趣味不失温馨


▲ 靠窗木作双人阅读区,提高使用效率,原木与软木搭配,干净轻盈


▲ 餐厨合一,地面采用六边形地砖与木地板拼接区分场域


▲ 餐厅实木餐桌搭配铁件与原木制造的椅凳,与顶面裸露的水泥梁柱形成质感上的对比


▲ 简单与纯粹的平淡生活才是最奢侈的期许


▲ 灰色柜门与金色拉手,搭配工字铺墙砖,错落台面让设计更为人性化


▲ 墙面设计壁龛搭配木质层板,增加小而精致的收纳空间


▲ 可移动餐边柜,上方安装功能性铁件墙饰,灰色置顶柜门是储藏间的入口


▲ 老人房木质地板延伸至床背景,黑白灰软装用金色元素点缀


▲ 儿童房延续木色地面,可爱的灰色大床搭配紫粉色床背景,用3D动物墙饰增加趣味性


▲ 利用儿童房的阳台空间打造休闲玩耍区


▲ 主卧一面蓝色床背景利用灯光增加层次变化,搭配金色镂空大床搭配与灰白色布艺窗帘,营造舒眠氛围


▲ 床头亮色分别点缀金色壁灯与流苏墙饰


▲ 原木色门片作卫生间隔断,灰白点缀金色与蓝色,延续简洁纯粹的风格


设计 | 力设计(杭州200公里以内)

微信:17858603257

后台回复「力设计」可以看更多作品


媒体转载请注明装修33天并保留设计师联系方式


欢迎业主、设计师、装修公司免费投稿照片

装修33天商务合作微信:king194316

松爷店铺掌柜微信:yejia1701


力设计其他作品推荐,点击下图查看89平时尚混搭二居 墨绿色低调轻奢主义


装修33天

实用装修指南

关注

装修33天 🏡 实用装修指南

喜欢我们的文章就随手转发到您朋友圈吧

    Read more