点上方蓝字可关注 微信号:装修33天
▲ 建筑面积200平,玄关以墙为框,实景为画,别有一番幽玄与侘寂之美
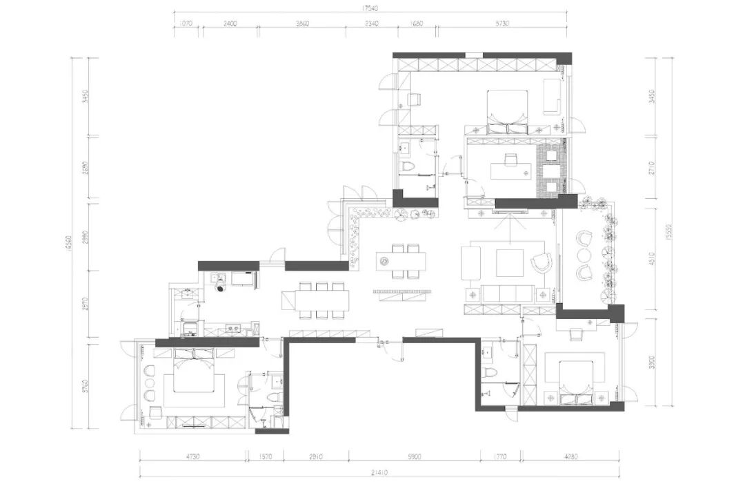
▲ 平面布置图
▲ 客厅端庄雅致,中式元素与现代材质巧妙融合,对称布局,形成一派现代中式的端庄丰华
▲ 舒适的家具,搭配深浅色系软装,轻松勾勒出空间的层次
▲ 白色提升亮度,黑色聚焦视线,同时注入一抹钢蓝,凸显质感
▲ 室内一簇绿与室外翠色山景遥相呼应
▲ 阳台采用木纹砖与户外家具,打造阳光养心一隅
▲ 餐厅用色淡雅含蓄,并将空间功能性放大呈现,以简约之物加以雕琢,传递『少即是多』的生活理念
▲ 厨房一字型橱柜,预留足够的活动空间,与生活阳台连通作洗衣区,让室内通透明亮
▲ 书房整体线条明朗流畅,书桌,书柜,榻榻米,提升空间功能性的同时不失韵味
▲ 儿童房用色青春明亮,搭配舒适的功能性家具,床背景两幅装饰画融汇室内色调
▲ 卧室软装细节
▲ 长辈房以功能性为主,褪去繁复装饰,以黑白灰点缀一抹蓝为基调,更适于睡眠
▲ 主卧色调把控有度,空间功能布局主次分明,并给人一种烟雨江南的温润视觉
▲ 灰泥墙面有一种水泥墙的视觉感,以装饰画与棉麻质地固有的温暖特质,调和背景墙的冰冷感
▲ 床尾整面系统柜延伸至窗口梳妆台,形成卧室衣帽间机能
设计 | 标点设计(深圳)
微信:15112516480 微信公众号:SZ-BDSJ
后台回复「标点」可以看更多作品
媒体转载请注明装修33天并保留设计师联系方式
欢迎业主、设计师、装修公司免费投稿照片
装修33天商务合作微信:king194316
松爷店铺掌柜微信:yejia1701
标点设计其他作品推荐,点击下图查看110平北欧三居 餐厨合一清新湖蓝色
实用装修指南
装修33天 🏡 实用装修指南
喜欢我们的文章就随手转发到您朋友圈吧
Go to "Discover" > "Top Stories" > "Wow"