点上方蓝字可关注 微信号:装修33天
▲ 建筑面积90+90平的复式结构,负一层为增送面积,总造价50万,入户木色系统柜满足鞋柜与换鞋凳的功能
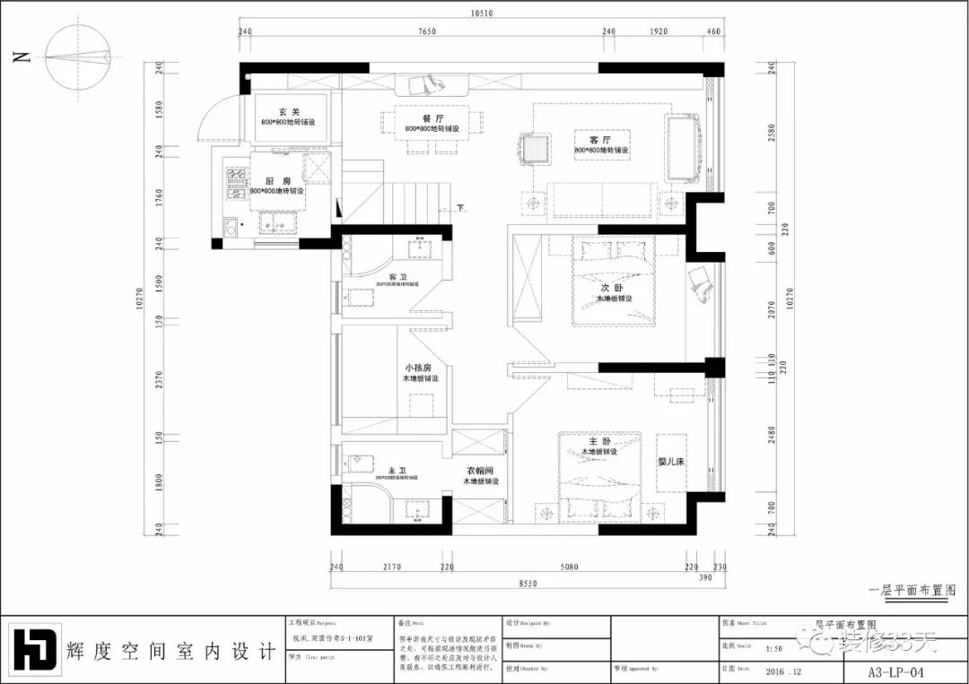
▲ 一层平面布置图
▲ 负一层平面布置图
▲ 入户见卡座餐厅,原木色餐椅,配色简洁大方,方圆背景墙加入镜面效果,勾勒出袅袅仙逸的空间,并拓宽视觉效果
▲ 免漆木饰面餐边柜,木色镂空吊灯,每一处细节都体现出新中式清雅之美
▲ 餐厅一旁楼梯通往负一层空间,玻璃护栏视觉通透,客餐厅以开放式布局,让整个公领域开阔明朗
▲ 客厅白墙暖木,一花一木,没有过于浮夸吸睛的装饰造型,清雅壁画背景墙赋予空间一定的文化意义与精神内涵
▲ 中式风壁灯与陶瓷件,着重于营造氛围
▲ 原木家具搭配灰色软垫与靠枕,质感舒适自然
▲ 卡其色棉麻质地窗帘搭配灰色石纹地砖,赋予空间柔和调性
▲ 走廊端景与整室风格呼应
▲ 次卧作小孩房,淡绿色背景点缀长条装饰画,搭配中式实木家具,展现一种温暖的居家气息
▲ 主卧古色古香的架子床,素雅淡然的壁画,棉麻质感的床品,浓郁中国风
▲ 金色元素壁灯,立体花朵与壁画图案相呼应
▲ 主卧空间足够宽敞,在床侧放置婴儿床,方便照看孩子,床尾原木斗柜与书桌增添空间功能性
▲ 另一侧中式雕花垭口搭配白色帘幔,是进入衣帽间与主卫的入口
▲ 主卫以黑白灰为基调,简洁干净
▲ 负一层茶室,地面通铺木纹砖,留白墙面搭配原木色家具,吊顶浅色木质线条搭配梁做造型,互相融合形成一体
▲ 庭院采光井封了一个玻璃顶,形成一个室内小花园的空间,绿色草坪加上青石板,旁边种着小青竹,趣味盎然
▲ 浅木色的雕花板辉映成趣,美观耐看
▲ 简洁现代的健身区,全镜面背景墙,瞬间扩大空间视线
▲ 健身房对面即为中式阅读区,一动一静,协调搭配
设计 | 辉度空间设计(杭州)
微信:18072920063
后台回复「辉度」可以看更多作品
媒体转载请注明装修33天并保留设计师联系方式
欢迎业主、设计师、装修公司免费投稿照片
装修33天商务合作微信:king194316
松爷店铺掌柜微信:yejia1701
辉度空间设计其他作品推荐,点击下图查看120平现代日式三室 深木色居酒屋风情
实用装修指南
装修33天 🏡 实用装修指南
喜欢我们的文章就随手转发到您朋友圈吧
Go to "Discover" > "Top Stories" > "Wow"