点上方蓝字可关注 微信号:装修33天
▲ 建筑面积110平,总造价17万(主材6万+家具软装5万+电器2万),入户木质玄关柜布置的简约清爽
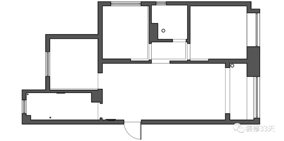
▲ 平面结构图
▲ 平面布置图
▲ 客厅地面通铺木色地板,灰黑调搭配原木色的家具,点缀柠檬黄提亮
▲ 线性吊灯增添个性与层次,壁纸由客厅铺贴至入户,以简框画,墙饰,装饰墙镜作点缀
▲ 浅绿纯色块墙面作电视背景,并以对称式壁灯的光线作装饰
▲ 纳入阳台,木作小吧台作隔断,增添机能的同时划分空间场域
▲ 吧台望向客餐厅视角
▲ 餐厅延续浅绿色墙面作背景,搭配金框装饰画与绿植,清新不失质感
▲ 木色餐桌铺一张白色格子桌布,搭配木质吊灯,营造温馨的北欧风就餐氛围
▲ 厨房花砖地面搭配小白砖墙面,错落的台面设计增加洗衣机收纳空间
▲ 多功能房,榻榻米连接大衣柜与书桌书架,兼具客卧书房与梳妆区的机能
▲ 主卧整体延续清新基调,床背景铺贴壁纸点缀六边形装饰画
▲ 卫生间以黑白为基调的,搭配木色台盆柜,增加自然调性,整体视觉干脆利落
设计 | 燃星设计(沈阳)
微信:wang13840469646
后台回复「燃星」可以看更多作品
媒体转载请注明装修33天并保留设计师联系方式
欢迎业主、设计师、装修公司免费投稿照片
装修33天商务合作微信:king194316
松爷店铺掌柜微信:yejia1701
燃星设计其他作品推荐,点击下图查看75平北欧原木调二居,精装房妙改焕然一新
实用装修指南
装修33天 🏡 实用装修指南
喜欢我们的文章就随手转发到您朋友圈吧
Go to "Discover" > "Top Stories" > "Wow"