点上方蓝字可关注 微信号:装修33天
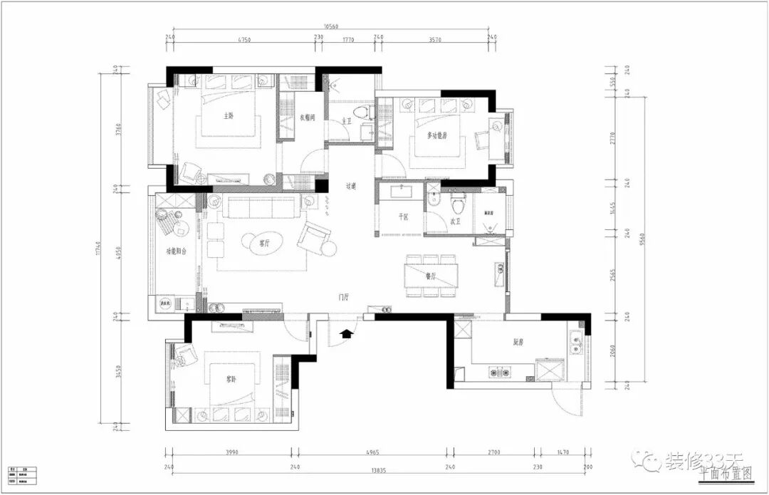
▲ 建筑面积117平,总造价40万,入户过道端景一组九连幅挂画让人眼前一亮
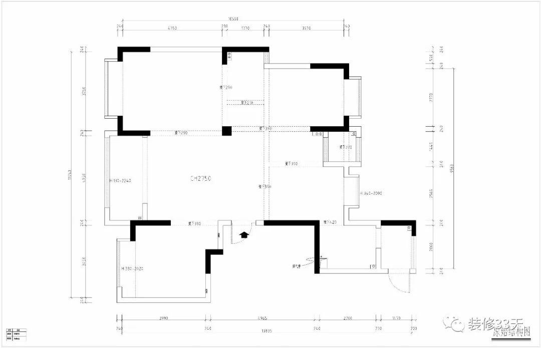
▲ 平面结构图
▲ 平面布置图
▲ 客厅地面通铺高亮仿石瓷砖,极简顶面无主灯设计,黑色走线勾勒方正空间
▲ 客厅整体色调以黑白灰为主,加入亮黄作为点亮空间的色彩
▲ 客厅与阳台相通,保证空间采光,不同的材质赋予空间现代质感
▲ 大理石结合木皮打造简约自然的电视背景,并以挂画与壁灯作装饰
▲ 客厅整体视角,电视背景左侧隐藏客卧入口
▲ 通过中式因景互借的手法,采用不锈钢花格区分客卫干区与餐厅场域
▲ 现代简约的餐桌椅搭配玫瑰金吊灯,木色背景的壁灯与电视背景灯相呼应
▲ 拆除原飘窗位,延展餐厅使用场域,并规划有系统柜兼具酒柜与置物展示机能
▲ 餐厅望向客厅视角
▲ 厨房整体通铺灰色仿大理石瓷砖,搭配浅色高亮定制橱柜,呈现整洁干练的料理空间
▲ 卫生间干湿分离,提高使用效率
▲ 客卫以黑白灰为基调,利用拼色六边砖增添空间灵动性
▲ 儿童房,人字铺木地板搭配童趣壁纸,由于孩子尚小暂时布置成儿童活动室
▲ 次卧,为老人偶尔来住而准备的卧室,整体依然以简约为主,黑白灰中点缀一抹姜黄提亮
▲ 主卧入口规划衣帽间,利用过道增设一组系统柜
▲ 主卧,人字铺地板与蓝灰色床背景打造静谧空间,卡其色大床与床尾阅读区满足卧室机能
▲ 床头采用悬挂式吊灯取代传统台灯,营造温馨就寝氛围
▲ 主卫延续黑白灰基调,墙面通过不同的铺贴方式并结合光源墙镜,作台盆柜背景
设计 | UP象尚设计(宁波)
微信:15888005039
后台回复「象尚」可以看更多作品
媒体转载请注明装修33天并保留设计师联系方式
欢迎业主、设计师、装修公司免费投稿照片
装修33天商务合作微信:king194316
松爷店铺掌柜微信:yejia1701
UP象尚设计其他作品推荐,点击下图查看120平现代混北欧 客厅隐形门 书房折叠窗
实用装修指南
装修33天 🏡 实用装修指南
喜欢我们的文章就随手转发到您朋友圈吧
前往“发现”-“看一看”浏览“朋友在看”