点上方蓝字可关注 微信号:装修33天
客厅效果图
我自己有个房子要装修,其实之前也时不时提过几次,前两天其实是正式开工了。我会单独开一个系列写写自己家的装修情况,仅仅是当做朋友之间的聊天吧,大家可以随便留言,可以问问题,可以提建议,可以探讨细节。
主要写两个部分,一部分是流水账,比如装修的进度情况;一部分是结合我自己的装修实践,可能有哪些装修经验可以跟大家分享。
客厅效果图
第一篇说说背景吧,这样更容易理解一些装修的布置。我是浙江宁波余姚人,这房子也是在老家,建筑面积大概是128平左右,安置小区,父母住在同小区。孩子慢慢长大,觉得一家5口住在一起稍显拥挤(主要是心理上的),于是想把同小区的另外一套也装修一下。之所以没有去买其他环境更好的小区,主要还是想在父母家『蹭吃蹭喝』更方便
。
主卧效果图
设计是找了杭州的力设计机构,之前其实也联系过几位其他的独立设计师,基本都没档期或者无法到当地落地执行。我找设计师主要是考虑几方面:1、地理位置至少应该是江浙沪范围的,跟踪执行比较方便;2、设计师历史作品我个人比较喜欢,平时作品完成度都比较稳定;3、价格可以接受。
次卧效果图
风格选择,和家人商量之后,是觉得美式和北欧混搭在一起,具体能做到什么样,无所谓,自己喜欢就行,不追求固定风格,不追求风格纯正不纯正。和设计师沟通的时候,发了《这衣帽间是女生梦想 老房变时尚之家》这个案例给设计师。
次卧效果图
原本预算觉得是40万以内搞定,因为自己也算半个业内人,觉得有些材料能找到厂家。不过看着看着聊着聊着,感觉50万都不一定收得住,当然我会尽量收。装修过程中我会记录每一笔钱,最后可以跟大家分享账单。
设计费加远程费(因为我不是杭州本地的房子)是230一平方,半包做的预算是20万,当然这是杭州的人工加上远程费,如果是本地找执行的话,我估计15万肯定够了,为了设计师和施工队伍能更顺畅的沟通,确保执行顺利,我还是忍痛选择了力设计自己的施工团队(签合同付第一笔款的时候还是有点心疼
)。
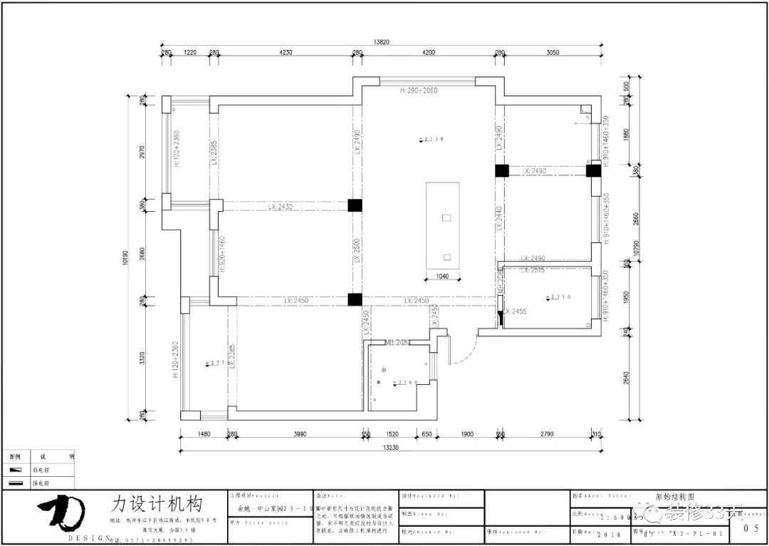
原始结构图
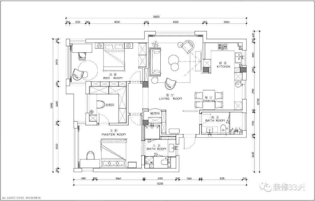
平面布置图
做开放式的公共空间,厨房也是开放式的,我们这边小城市加上老小区应该是没问题,后期实际做的时候再跟大家汇报。卧室留两个就够了,因为同小区还有父母的房子。一个小房间在书房和衣帽间之间选择了衣帽间,老婆大人说了算,我以后办公就在餐厅、客厅、次卧、衣帽间之间打游击就行了
。
这个系列就真当日记博客写了,欢迎大家留言交流提建议。
关键词推荐(可回复可点击)
欢迎业主、设计师、装修公司免费投稿照片
装修33天商务合作微信:king194316
松爷店铺掌柜微信:yejia1701
实用装修指南
装修33天 🏡 实用装修指南
喜欢我们的文章就随手转发到您朋友圈吧
Go to "Discover" > "Top Stories" > "Wow"