点上方蓝字可关注 微信号:装修33天
▲ 使用面积130平,总造价60万,入户左侧放一组可移动斗柜布置玄关,方便随手置物与收纳
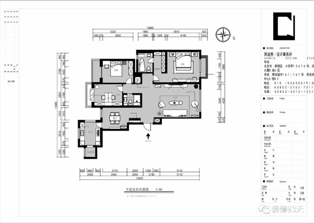
▲ 平面布置图
▲ 公领域空间采用灰色木纹砖加铺浅灰色地毯,与大理石背景墙呼应
▲ 客厅与阳台连通,采光充足,选用“高级灰”的经典色系进行组合搭配,自然纹理与工艺相结合
▲ 几何线条切割后的大理石背景墙,简单又富有内容,北极熊造型拼接书架,实用又趣味
▲ 餐厅,灰色毛石墙面让空间多了一丝硬朗,皮质餐椅以及深色木桌现代感分明,绿植和金属元素中和了空间的硬度
▲ 厨房空间比较小,色调以明快为主,避免压抑,白色基调加入稍许明黄色,很清爽舒适
▲ 走廊端景
▲ 客卫,灰色哑光瓷砖搭配黑白台盆柜,简约而低调
▲ 次卧整体延续灰色基调,木色地板与一抹蓝色布艺平衡灰色的硬朗质感
▲ 床侧铁件置物架作电视背景,蓝丝绒质感的懒人椅打造舒适休闲一角
▲ 次卧2,背景墙用几何色块打破单调氛围,床品依旧是香芋色为主,点缀黄色
▲ 床侧放置小书桌代替床头柜,兼具阅读,梳妆等机能
▲ 主卧采光非常好,窗外就是奥林匹克公园,浅灰调床背景,香芋色床品搭配卡其色大床,大张抽象色彩地毯充满灵动性
▲ 床侧采用现代感家具创造实用美观的机能角
▲ 床背靠窗放置小尺寸休闲沙发,落地玻璃的设计让你不出户就可以坐在沙发上眺望远方
▲ 主卫,地面与墙面采用同色系哑光砖工字铺贴,造型浴缸满足舒适洗浴功能,一抹粉调增加俏皮感
设计 | 香港高迪愙设计事务所(北京)
微信:15010642960
电话:010-53635019
后台回复「高迪愙」可以看更多作品
媒体转载请注明装修33天并保留设计师联系方式
欢迎业主、设计师、装修公司免费投稿照片
装修33天商务合作微信:king194316
松爷店铺掌柜微信:yejia1701
香港高迪愙设计事务所其他作品推荐,点击下图查看用软装和配色营造高级感,少花预算出效果
实用装修指南
装修33天 🏡 实用装修指南
喜欢我们的文章就随手转发到您朋友圈吧
Go to "Discover" > "Top Stories" > "Wow"