点上方蓝字可关注 微信号:装修33天
▲ 建筑面积140平,总造价35万,简单大方的玄关,地面采用六角砖铺贴,整体搭配显得更加出彩
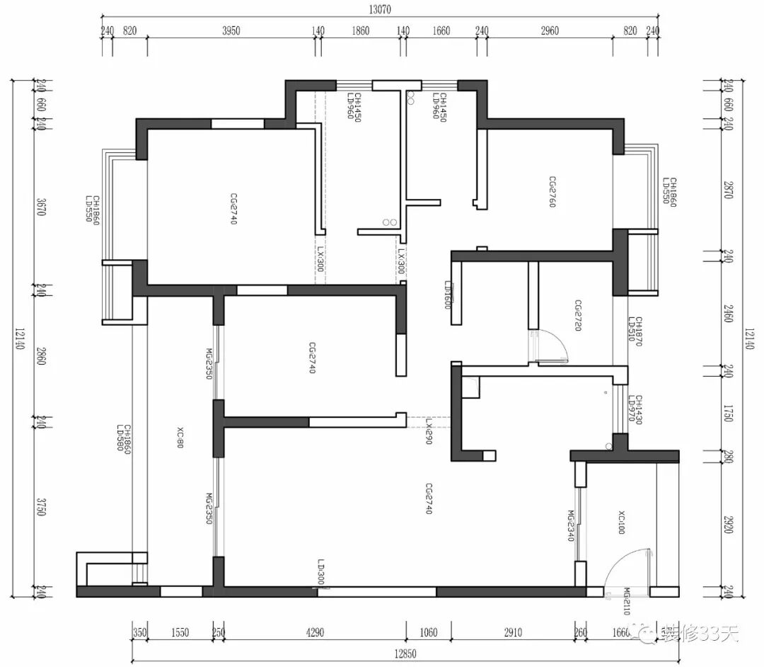
▲ 平面结构图
▲ 平面布置图
▲ 入户与餐厅衔接,在两边设计镂空置物柜,保证两个空间的收纳,同时不影响餐厅的采光
▲ 客餐厅互通,以吊顶和背景墙来划分不同的功能区域,金属边框的不规则镜子,活跃氛围的同时,点亮单调的背景
▲ 美式的厨房配上现代的砖也非常耐看
▲ 客厅,瓷砖地面加铺大张地毯,简洁顶面通过一盏金色吊灯提亮
▲ 休闲公领域与阳台相连,确保空间采光,柔美的蓝色点缀其中,打破美式的陈旧,同时丰富客厅空间的色彩
▲ 灰色护墙造型背景,搭配金色元素家具,低调与奢华相互平衡,带来别样的美式感受
▲ 摒弃传统美式繁杂造型,只是以简单的线条划分,金色与灰色呈现大气简约格调,符合当下年轻人的审美
▲ 打造整墙灰色调电视背景,兼具储物柜功能,对称的造型让空间感更为有序
▲ 榻榻米兼书房的设计,一面浅绿色背景制造清新视觉,可供家人一起休闲娱乐,也可兼顾客卧的功能
▲ 次卧,背景墙与窗帘,采用同色调深浅搭配,纯黑色美式大床搭配白色储物柜,橙色斑马装饰画点缀空间
▲ 儿童房,简约美式铆钉高背床搭配清新壁纸作背景,舒适床品与小夜灯营造少女感就寝氛围
▲ 主卧,暖色系地板与窗帘搭配卡其色高背床与金色元素软装,柔和色彩给人舒适的视觉感受
▲ 浅色系几何图案壁纸,衬托出美式家具的质感,床品也以舒适为主,体现轻奢美式的细节
▲ 卫生间,浅色系的运用让整个空间变得更为简约明亮,淋浴区立面设计壁龛方便置物
设计 | 晓安空间设计(苏州)
微信:xn1533856927
后台回复「晓安」可以看更多作品
媒体转载请注明装修33天并保留设计师联系方式
欢迎业主、设计师、装修公司免费投稿照片
装修33天商务合作微信:king194316
松爷店铺掌柜微信:yejia1701
晓安空间设计其他作品推荐,点击下图查看120平自然温馨美式 清浅优雅不失稳重
实用装修指南
装修33天 🏡 实用装修指南
喜欢我们的文章就随手转发到您朋友圈吧
Go to "Discover" > "Top Stories" > "Wow"