点上方蓝字可关注 微信号:装修33天
▲ 建筑面积89平,总造价35万,进门右侧打造一组入墙式分体鞋柜,解决入户收纳需求
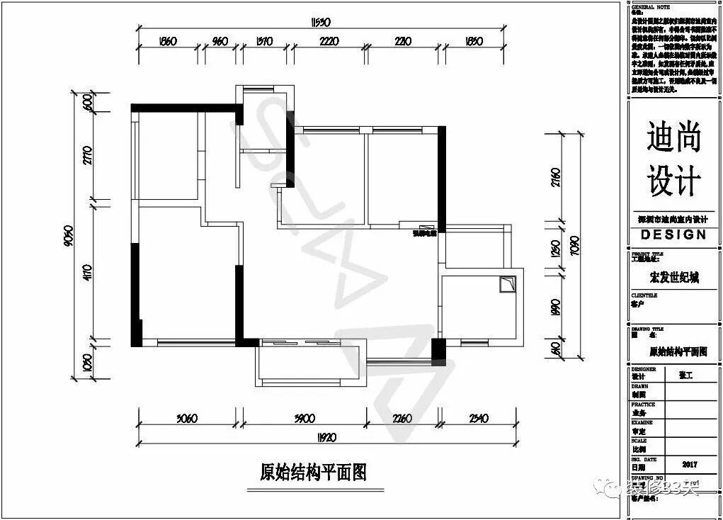
▲ 平面结构图
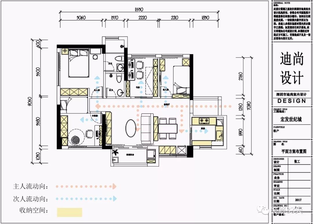
▲ 平面布置图
▲ 入户左侧规划出餐厨区域,木色餐桌搭配跳色餐椅,合理利用落地凸窗的空间作收纳
▲ 厨房减薄墙面,实现U型厨房规划,白色小面包墙砖把灰色橱柜衬托的尤为耐看
▲ 餐厨区域望向客厅,采用餐边柜靠背沙发,既划分客餐厅场域,也让沙发靠背有了靠山
▲ 客厅,木地板搭配灰蓝色软装,Tiffany蓝色主沙发,打造清新北欧基调
▲ 客厅电视组合柜是在一个有限空间里合理使用空间的典范,合理规划能保证收纳同时排除视觉的压抑感
▲ 客厅望向一旁的过道,书房与客厅之间采用玻璃移门,确保空间通透与采光
▲ 客卫,空间不大,却保留3大主要使用功能,并利用墙面作收纳,蓝白方砖无规律的色彩搭配增添调性与美观
▲ 木色与灰蓝色调书房,采用左右两侧布局作收纳空间,右侧整体书柜下方是一个隐形的折叠床,增添空间机能
▲ 长辈房,靠墙设计榻榻米,合理利用狭小空间
▲ 儿童房结合2个小公主的居住需求,利用隔出来的位置作为双层床空间
▲ 靠窗一面墙作为强大的收纳空间布局,置顶衣柜满足不同的收纳需求,左侧规划孩子的活动空间
▲ 主卧设计中充分考虑到动静结合,衣柜收纳在床尾与小孩房靠背的空间
▲ 灰色纯色块背景对称装点白色壁灯,蓝灰色与木色家具营造出自然安静的素雅氛围
▲ 洗手间在进门右侧,采用谷仓门设计,不占用使用空间
▲ 主卫色调与客卫呼应,墙面采用蓝白色方砖,以上下拼色的形式增添层次
设计 | 迪尚设计(深圳)
微信:szdssj 电话:13590419225
后台回复「迪尚」可以看更多作品
媒体转载请注明装修33天并保留设计师联系方式
欢迎业主、设计师、装修公司免费投稿照片
装修33天商务合作微信:king194316
松爷店铺掌柜微信:yejia1702
迪尚设计其他作品推荐,点击下图查看96平木色北欧三室 收纳强颜值高实用宅
实用装修指南
装修33天 🏡 实用装修指南
喜欢我们的文章就随手转发到您朋友圈吧
Go to "Discover" > "Top Stories" > "Wow"