点上方蓝字可关注 微信号:装修33天
▲ 使用面积128平,造价50万(不含家电),入户一组抽拉、平开、上掀盖式组合定制鞋柜满足不同收纳需求
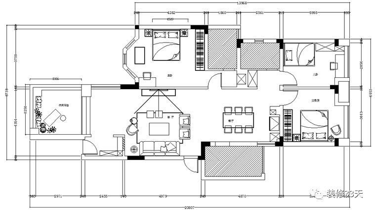
▲ 平面布置图
▲ 客厅,整体灰调,用不同的材质及色调的灰色来做层次区分
▲ 沙发背景墙选用深灰,结合主沙发的浅灰,加深视觉上后退的围合感
▲ 黑白灰的空间,加入原木色,并不会因为灰色基调带来清冷感
▲ 大象落地装饰画过渡空间灰调层次,胡桃木铁艺边几组与另一端落地灯呼应
▲ 异形香樟原木,只上木蜡油,打在自然质感的茶台
▲ 皮质结合铁艺的单椅,提升整体空间的舒适度与质感
▲ 木质休闲单椅与后面的地台,点缀绿植,打造惬意一角,独享一段轻盈时光
▲ 电视柜同样选择温润的木质与铁艺结合,黑胡桃木与沙发边几材质保持一致
▲ 灰白木的餐厅,选择自由生长形态的大体量木质桌面,与厨房的谷仓门形成呼应
▲ 进口原木的厚重感与色调,在周围浅色背景的烘托下,轻重有度,墙面用餐盘DIY点缀,不雷同有个性
▲ 聚焦于自然木纹与精致美味
▲ 蓝白基调的明亮空间搭配原木高低床,满足二孩家庭的就寝需求,小帐篷与造型灯增添烂漫童趣感
▲ 长辈房以柔和的岩石色为基调,配以墨绿床背景,让整个空间不过于显的空冷,并提高空间色彩饱和度
▲ 主卧,木色地板与极简顶面,爵士灰层次空间搭配精致软装与家具,静谧有调性
▲ 床尾梳妆区以及窗帘,与主卧风格保持一致,感受生活品质与仪式感
▲ 黑白灰配色的卫生间,搭配品质卫浴,打造明亮清爽的洗漱空间
设计 | 初懿设计(成都)
微信:18180817659
后台回复「初懿」可以看更多作品
媒体转载请注明装修33天并保留设计师联系方式
欢迎业主、设计师、装修公司免费投稿照片
装修33天商务合作微信:king194316
松爷店铺掌柜微信:yejia1702
初懿设计其他作品推荐,点击下图查看131平混搭个性宅 软装搭配用色有格调
实用装修指南
装修33天 🏡 实用装修指南
喜欢我们的文章就随手转发到您朋友圈吧
Go to "Discover" > "Top Stories" > "Wow"