点上方蓝字可关注 微信号:装修33天
▲ 使用面积140平,全案价60万,玻璃砖让不规则门厅变得明快又时尚
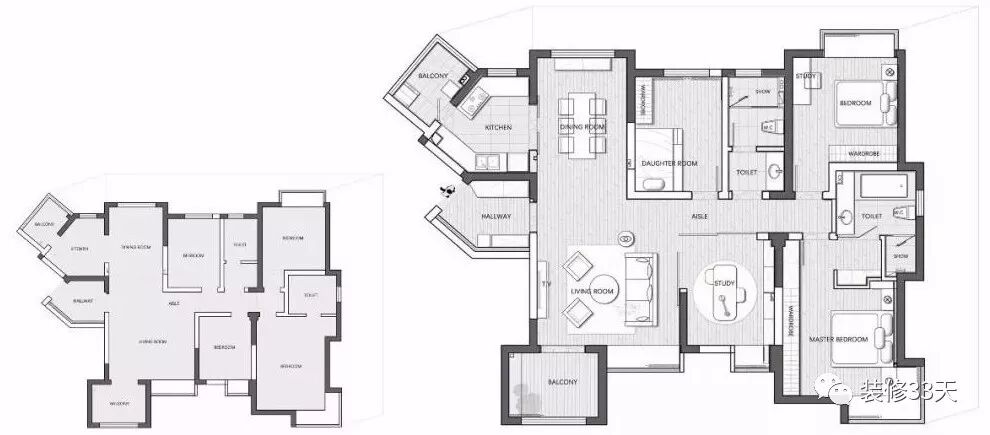
▲ 平面布置图
▲ 入户进入公领域,一览整个空间视角
▲ 客厅采用木纹地面搭配极简顶面,无主灯设计让空间视觉更开阔
▲ 整体通过墙面装饰和灯光凸显层次变化
▲ 黑色皮质沙发与黑色木质百叶帘相互呼应,空间色调沉稳干练
▲ 圆形石材面茶几装点一盆绿植,颇有韵味
▲ 采用天然大理石铺贴出现代简约质感的电视背景,加入定制款电壁炉,层次与色调交叠
▲ 客厅采用木色KD板作墙面背景,黑灰色餐桌餐椅轻盈而简约
▲ 厨房与餐厅动线相邻,采用玻璃移门隔绝油烟,但不影响两个空间的通透感
▲ 书房拆除非承重墙改为玻璃推拉门,与客厅形成交流空间,并化解过道的局促
▲ 浅色墙面搭配深色调家具软装,并通过灯光赋予层次
▲ 儿童房,木地面与木色家具相互呼应,卡通主题的墙面搭配粉调软装,童趣可爱
▲ 在主卧进门处设计嵌入式柜体,增添卧室收纳机能
▲ 留白墙面穿插一体式床背,连接着床头置物来取代床头柜
▲ 床尾设计系统柜,满足卧室储物需求
▲ 卫生间整体采用灰褐色瓷砖铺贴,白色架空浴室柜包裹凹凸墙面,玻璃淋浴房让空间干湿分区
设计 | 以勒设计(成都)
微信:13350875482
后台回复「以勒」可以看更多作品
媒体转载请注明装修33天并保留设计师联系方式
欢迎业主、设计师、装修公司免费投稿照片
装修33天商务合作微信:king194316
松爷店铺掌柜微信:yejia1701
以勒设计其他作品推荐,点击下图查看150平现代台式三室 断舍离主义简洁舒适
实用装修指南
装修33天 🏡 实用装修指南
喜欢我们的文章就随手转发到您朋友圈吧
Go to "Discover" > "Top Stories" > "Wow"