点上方蓝字可关注 微信号:装修33天
▲ 建筑面积84平,总造价50万,整体以黑白灰作主基调,采用考究的材质打造品质生活
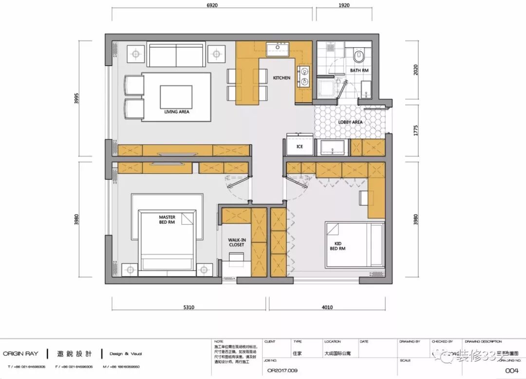
▲ 平面布置图
▲ 入户右侧设置开放式厨房,连接餐桌的设计巧妙实用,BOLONI整体厨房赋予高端品质
▲ 餐桌同时兼具办公桌的功能
▲ 客厅地面采用浅灰色哑光砖切割再拼贴,平整的白色顶面嵌入黑色灯槽,拉伸视觉空间
▲ 灰色背景墙点缀湖蓝色调装饰画,与地面灵动色彩的地毯相呼应
▲ 奶油色皮质主沙发搭配B&O音响
▲ 打造储物柜体结合电视背景的立面设计,黑白搭配层次分明
▲ 客厅望向餐厨与门厅视角
▲ 儿童房入户
▲ 儿童房木质地面搭配湖绿色布艺软装带来清新视觉,床尾设计整面储物柜体,中部留空展示乐高模型
▲ 儿童房床侧大衣柜连接书桌书架
▲ 主卧以深灰色为主调,点缀绿叶装饰画与原木家具,呈现自然静谧舒眠环境
▲ 床侧设计步入式衣帽间,透明玻璃移门作隔断,兼具更衣与梳妆机能
▲ 在入户处设计外置洗手台,六边形灰砖从地面延续至背景,搭配隐形光源墙镜
▲ 卫生间,采用窄型洗手池,留出宽敞动线,搭配壁挂马桶与玻璃淋浴房
设计 | 遨锐设计(上海)
微信:otika2046
电话:18616359550
后台回复「遨锐」可以看更多作品
媒体转载请注明装修33天并保留设计师联系方式
欢迎业主、设计师、装修公司免费投稿照片
装修33天商务合作微信:king194316
松爷店铺掌柜微信:yejia1702
遨锐设计其他作品推荐,点击下图查看现代简约改善型住宅 黑白灰木调时尚居
实用装修指南
装修33天 🏡 实用装修指南
喜欢我们的文章就随手转发到您朋友圈吧
Go to "Discover" > "Top Stories" > "Wow"