点上方蓝字可关注 微信号:装修33天
▲ 使用面积105平,总造价35万,入户右侧打造多功能收纳柜,空间拆掉一半非承重墙,动线开阔
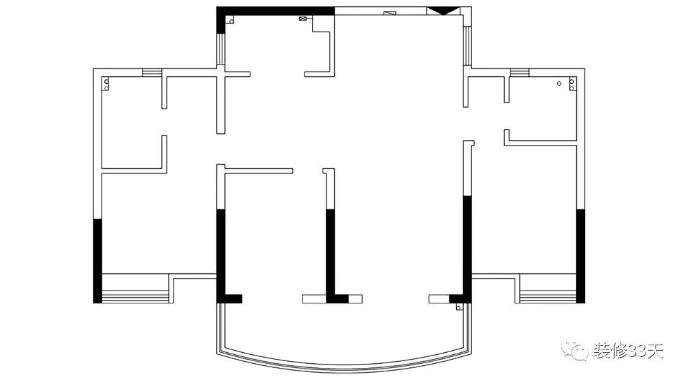
▲ 平面结构图
▲ 平面布置图
▲ 客厅的沙发旁边设置竹木隔断,缓冲视线
▲ 客厅打通7米的大阳台,作了晾晒与休闲的分区
▲ 客厅,剑麻地毯和空间里的木质色系相同,深灰色的水泥砖衬托木材的温润质感
▲ 日式的居家风格,背景点缀一幅油画,搭配落地灯的暖光,这样宁静的场景,混搭出不一样的感觉
▲ 以整面木色墙面作电视背景,并增加一组开放式置顶收纳
▲ 客餐厅互通,原木色家具搭配简约吊灯,木色背景设计出两个卧室门片
▲ 厨房,小白砖结合木色柜门,错落洗手台更符合人性化的使用,功能动线重新优化,顺时针方向的取洗切炒
▲ 多功能房未来建作小孩房使用,壁灯是按以后摆床的尺寸定的位置
▲ 多功能房一角
▲ 次卧,延续清简素朴的格调,留白墙面搭配原木家具,油画与壁灯与其他空间相互呼应
▲ 次卧一角,简约温馨
▲ 主卧,进门便是双人书桌,谷仓门后面是衣帽间,正对一面穿衣镜。主卫门作45度的调整,避免正对卧室门
▲ 墨绿色床品瞬间提升空间气质,搭配米色窗帘,让留白空间能够和木质家具与地面自然衔接
▲ 主卫,洗手台下水改成墙排,下面做了置物层板,方便放泡脚的盆
设计 | 廖欢(长沙)
微信:rocklioahuan
电话:18874102313
后台回复「廖欢」可以看更多作品
媒体转载请注明装修33天并保留设计师联系方式
欢迎业主、设计师、装修公司免费投稿照片
装修33天商务合作微信:king194316
松爷店铺掌柜微信:yejia1702
廖欢其他作品推荐,点击下图查看20万装107平轻盈北欧四居
实用装修指南
装修33天 🏡 实用装修指南
喜欢我们的文章就随手转发到您朋友圈吧
Go to "Discover" > "Top Stories" > "Wow"