点上方蓝字可关注 微信号:装修33天
▲ 使用面积120平,入户玄关设计半高鞋柜置物台,点缀摆件艺术画
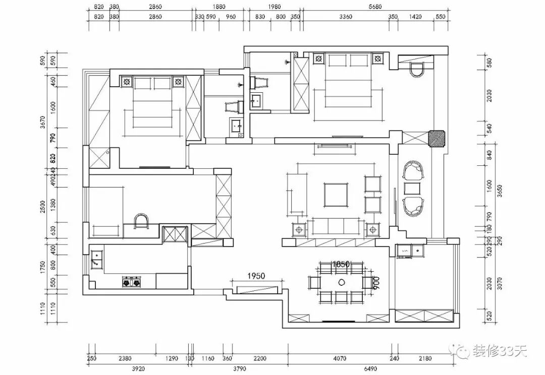
▲ 平面结构图
▲ 平面布置图
▲ 入户右侧玄关布置与鞋柜布景相映成趣
▲ 从入户动线进入公领域空间,地面黑色走边线条勾勒出餐厅客厅的形状
▲ 客厅,选择黑色线条感的沙发,点缀蓝色窗帘与蓝色布艺抱枕,黄色文心兰与黄色的抱枕遥相呼应
▲ 客厅看向餐厅,这个角度的餐厅俨然成了客厅背后挂着的一幅画
▲ 电视背景墙原木与咖啡色大理石之间的一条光带,让整个墙面立体了起来
▲ 从阳台望向整个客厅空间
▲ 黑色餐桌椅呼应主体黑色线型,装饰柜与酒柜选择黑色的隐形拉手,茶具,陶器都彰显主人对生活的热爱
▲ 一束黄色跳舞兰提亮空间
▲ 从餐厅望向客厅视角
▲ 厨房原木色橱柜呼应客餐厅原木装饰,空间与空间相互独立又相互关联
▲ 次卧纳入后阳台,扩展使用空间,选择的家具与衣柜移门呼应整体风格
▲ 主卧同样连通南阳台使空间变得开阔明亮,并打造阳光阅读区
▲ 主卧室床头的花鸟壁画,素雅而不单调
▲ 卫生间整体通铺灰色石纹砖,成品浴室柜与镜柜简单实用
设计 | 南舍设计(南京)
微信:LilyDesign1987
微信公众号:nanshekongjiandesign
后台回复「南舍」可以看更多作品
媒体转载请注明装修33天并保留设计师联系方式
欢迎业主、设计师、装修公司免费投稿照片
装修33天商务合作微信:king194316
松爷店铺掌柜微信:yejia1702
南舍设计其他作品推荐,点击下图查看128平简约美式三室 蓝白色纯净视觉感
实用装修指南
装修33天 🏡 实用装修指南
喜欢我们的文章就随手转发到您朋友圈吧
Go to "Discover" > "Top Stories" > "Wow"