点上方蓝字可关注 微信号:装修33天
▲ 建筑面积80平,玄关右侧柜体,留出换鞋凳位置,既不占空间,又方便出门换鞋
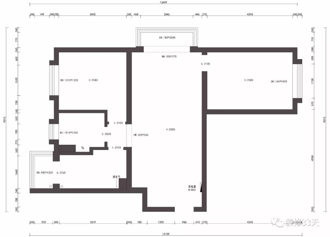
▲ 平面结构图
▲ 平面布置图
▲ 在玄关改造上,通过定制柜体增加超级强大的储物空间
▲ 餐厅后方打造置顶式木皮储物空间,为白色空间加入自然色调
▲ 选用造作餐桌配上不同款式与颜色的餐椅,简约的吊灯发出柔和的光韵,让生活变的温柔起来
▲ 定制6.8米超长储物柜,贯穿玄关、餐厅、客厅,通长的矮柜让空间显得简洁又完整
▲ 客厅没有常规的主灯 ,采用轨道灯呼应矮柜的线条感,漫反射光线让空间氛围更加柔和自然
▲ 充满ins风的客厅,每一件单品都是源于独立设计师品牌
▲ 阳台并入客厅内,打造休闲地台,下部还可以储物
▲ 厨房,吊柜增加灯带,让厨房更有氛围,打开吊柜时也更容易看清内部
▲ 拆改卫生间和厨房之间的墙体后,在橱柜对面增加整面墙的收纳柜,在视觉上整齐划一
▲ 次卧床边刚好容下写字桌,利用搁板做置物架,合理利用空间
▲ 选用宜家衣柜与沙发床,功能强大多变,沙发床拉开还可做双人床,下面抽屉还可做储物
▲ 主卧,以白色与浅灰为主色调,空间虽然小,但功能齐全,氛围舒适温柔
▲ 床侧设置80cm长的小巧梳妆台
▲ 靠近衣柜一侧,一款超爱的水磨石边几搭配悬挂式吊灯
▲ 卫生间整体通铺水泥色瓷砖,加长镜柜让储物收纳得到合理利用,视觉上增大空间
设计 | 黄吉空间设计(北京)
微信:176119519
后台回复「黄吉」可以看更多作品
媒体转载请注明装修33天并保留设计师联系方式
欢迎业主、设计师、装修公司免费投稿照片
装修33天商务合作微信:king194316
松爷店铺掌柜微信:yejia1702
黄吉空间设计其他作品推荐,点击下图查看78平简约单身女宅 精致大气实用易打理
实用装修指南
装修33天 🏡 实用装修指南
喜欢我们的文章就随手转发到您朋友圈吧
Go to "Discover" > "Top Stories" > "Wow"