点上方蓝字可关注 微信号:装修33天
▲ 使用面积112平,半精装房改造,入户整面木质百叶窗与大面积衣帽鞋柜
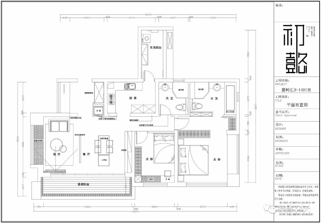
▲ 平面布置图
▲ 客厅飘窗休闲坐结合主沙发围合客厅功能区,既节约空间又多变,构成弹性的生活场域
▲ 空间朝向关系分离,以斜铺灰纹木地板延伸至背景,打乱本来的秩序感,将重心进行平衡
▲ 中岛为中心连接厨房餐区,黑色与木色搭配,咖啡色黑板墙的位置以及面积都起到一个中和作用
▲ 餐厅结合中岛共享,既是西式操作台面,亦可办公用餐,并且与客厅同时共享大阳台
▲ 从室内望向阳台视角
▲ 半开放式厨房,以灰色底砖做为间色,轻柔的过渡到白色橱柜
▲ 在走廊设计一面大黑板墙,从厨房外墙这头一直延伸到通道那头,撞破小空间的门扇规律
▲ 次卫在一片柔和的灰调中寻找平衡,壁挂式马桶让打扫卫生没有死角
▲ 未来的儿童房,蓝色背景搭配书桌连接卡座,并延伸书柜与衣柜,完善卧室的配套设施
▲ 儿童房门片后的量体,以开放式置物设计,让空间收纳多样化
▲ 主卧,功能的布局设计优化了睡眠区的好光线与优质视野
▲ 在明度最高的白色里运用暖色和冷色的灰调相互穿插,打造舒适的睡眠环境
▲ 主卧进门左侧内推墙面改为木色开放式书柜,右侧纯白无拉手衣柜分隔出睡眠空间
▲ 透过柔和的睡眠区走近主卫,一片黑白分明的纯净视线
▲ 主卫,黑色成熟搭配白色纯真,镜柜定制可推拉面板,满足不同功能下的使用
设计 | 初懿设计(成都)
微信:18180817659
后台回复「初懿」可以看更多作品
媒体转载请注明装修33天并保留设计师联系方式
欢迎业主、设计师、装修公司免费投稿照片
装修33天商务合作微信:king194316
松爷店铺掌柜微信:yejia1702
初懿设计其他作品推荐,点击下图查看128平北欧质感三室 原木爵士灰柔和干练
实用装修指南
装修33天 🏡 实用装修指南
喜欢我们的文章就随手转发到您朋友圈吧
Go to "Discover" > "Top Stories" > "Wow"