点上方蓝字可关注 微信号:装修33天
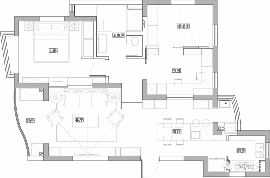
▲ 使用面积90平,是一对台湾夫妻在上海的小家,入户收纳连接电视墙
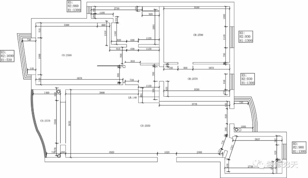
▲ 平面结构图
▲ 平面布置图
▲ 客厅,浅木纹地板加铺绿色叶纹地毯,极简顶面用点光源取代主灯,黑色线条勾勒方正空间
▲ 留白背景划过一道黑色置物层板并点缀个性装饰画,与顶面灯带洗墙相互辉映
▲ 黑色主沙发搭配灰色沙发单椅,沉稳大气中又略显俏皮与灵动
▲ 客厅与主卧之间透过一道玻璃隔墙增加空间的互动
▲ 大片留白的电视背景,仅通过白色与木色柜体修饰,简洁素雅又具大量储物机能
▲ 客厅望向餐厅视角
▲ 餐厅延续客厅一体的木质地板与相呼应的吊顶造型,搭配深木色餐桌,空间色调层次分明
▲ 餐桌连接西厨吧台,相互延伸操作台面,大面积餐边收纳中留出一面玻璃隔墙,通透书房与餐厅的视觉感
▲ 西厨餐厅通往中厨过道,设置收纳区域,预留多门冰箱位置
▲ 厨房,U型操作台提高厨房的使用率,黑白搭配的色调呈现个性简约的料理空间
▲ 餐厨望向客厅区域,互通格局
▲ 客餐厅进入公领域空间,错层,有三级台阶
▲ 将次卧改造成宽阔简洁的书房与榻榻米空间,L型转角写字台可同时容纳多人办公
▲ 书房透过玻璃隔墙望向餐厅视角
▲ 木质移门将书房与榻榻米空间隔开,次卧改造后仍保留卧房功能
▲ 主卧,简约干净的硬装空间,浅木色地板搭配深木色床架,营造轻松自然的舒眠氛围
▲ 主卧取消电视墙,设置嵌入式书架,通透的玻璃隔墙前打造阅读区,让你在卧室中就能一览客厅景象
▲ 床侧衣柜采用黑白柜门,纯白搭配岩浆花纹,让卧室有了几分自然的厚重
▲ 三分离式卫生间,黑白相间的地砖配以磨砂移门,干湿分离的同时确保空间的私密性
▲ 利用空间的犄角旮旯打造成浴缸一旁的置物
设计 | 木梵设计(上海)
微信:gao521_812
后台回复「木梵」可以看更多作品
媒体转载请注明装修33天并保留设计师联系方式
欢迎业主、设计师、装修公司免费投稿照片
装修33天商务合作微信:king194316
松爷店铺掌柜微信:yejia1702
木梵设计其他作品推荐,点击下图查看70平简约混搭Loft 镂空楼梯+钛合金踢脚线
实用装修指南
装修33天 🏡 实用装修指南
喜欢我们的文章就随手转发到您朋友圈吧
Go to "Discover" > "Top Stories" > "Wow"