点上方蓝字可关注 微信号:装修33天
▲ 使用面积126平,总造价50万,纯净的木质材料,更能感受到一种简约到极致的美好感受
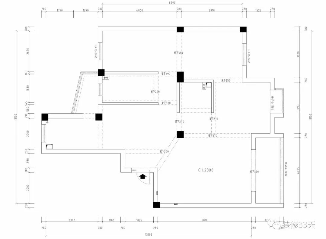
▲ 平面结构图
▲ 平面布置图
▲ 入户即见餐厅,一组嵌入式鞋柜底部留空,局部辅以木色置物,以蓝灰色+木色的餐厅,更有清爽的意味
▲ 餐桌一旁的储物柜布置端景,并增加储物空间
▲ L型厨房提高空间的利用率,采用不同色彩的橱柜门片,层次干净,视觉轻盈
▲ 客厅,一抹温暖木色带来的更多是自然质朴气息,让整个空间质感突出
▲ 客厅空间的布置及选用家具色彩的搭配既协调又对称
▲ 装饰画布置出清新范背景,点缀一抹亮黄色软装
▲ 一张舒适的地毯,不仅带来脚感的舒适,更让整体客厅空间饱满而温馨
▲ 背景采用KD板错拼饰面,与整体木质色彩不谋而合,动物造型为居住空间增添许多情趣
▲ 客厅一角的大叶绿植和摆件更是给空间增色不少
▲ 休闲阳台,一把木椅加上清新可人的盆栽植物,在城市中拥有一片小花园,不宽敞却很精致
▲ 客厅一角,保留女主人小时候的钢琴,琴声响起时飘满整个房间
▲ 客卫干湿分区,提高使用效率,木地板拼接六角地砖,防溅水又别致
▲ 儿童房空间布局比较简单,墙上动物挂画是这里的主角,创意个性的萤火虫吊灯,倍感温馨充满奇趣
▲ 主卧,木色地板搭配木质家具,采用灰蓝的背景色,点缀天使羽翼挂画,强烈的对比,使得整个空间更加立体
▲ 简单的金属吊灯取代台灯,留出床头置物空间
▲ 主卧配备一个多功能房,即是书房,又作衣帽间使用
▲ 原木色搭配白色,让人心神放松,可以静下心来工作、学习
▲ 主卫,采用玻璃砖隔墙与木色谷仓门的设计,体现一种通透的自然视觉
▲ 主卫,六角砖错落的铺设看似杂乱,实则非常巧妙的排布,让空间悦动起来
设计 | UP象尚设计(宁波)
微信:15888005039
后台回复「UP象尚」可以看更多作品
媒体转载请注明装修33天并保留设计师联系方式
欢迎业主、设计师、装修公司免费投稿照片
装修33天商务合作微信:king194316
松爷店铺掌柜微信:yejia1702
UP象尚设计其他作品推荐,点击下图查看137平现代简约三室 高级感中性色空间
实用装修指南
装修33天 🏡 实用装修指南
喜欢我们的文章就随手转发到您朋友圈吧
Go to "Discover" > "Top Stories" > "Wow"