点上方蓝字可关注 微信号:装修33天
▲ 建筑面积130平,入户一组嵌入式鞋柜,中部留空方便随手置物
▲ 一层平面布置图
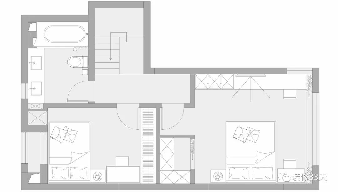
▲ 二层平面布置图
▲ 从玄关进入客餐厅通透大气,清新自然,楼梯第一步台阶与电视台面融为一体,让空间更加完整
▲ 客餐厅互通格局,榉木餐桌与简约餐椅搭配,表达一种简约不简单的品味
▲ 餐厅望向客厅视角,空间以简约为主要基调,在硬装上追求利落的线条感与开放式的大空间
▲ 客厅整体采用温馨灰色系,沙发后面挂画摆脱传统摆放形式,大幅落地,局部红色点缀空间
▲ 客厅望向餐厨区域,简约餐厅与厨房之间采用玻璃作隔墙,让空间更加通透
▲ 餐厅侧对书房,设计双联动移门,满足不同功能需求切换时所需的私密性
▲ 书房大量使用KD板和白色亚光烤漆柜门,氛围温馨,除了做客卧、儿童房、书房之外,还能承担亲子活动、储物、休闲、健身等功能
▲ 榻榻米下方的是350*700的长抽屉,两边的柜子更是有3.5平的收纳空间,满足收纳,休闲与休憩
▲ 多个格子书柜设计提升实用效率,柜体中藏着一张上翻床,兼作客卧或是将来的儿童房
▲ 多功能房望向客餐厅视角
▲ 客卫,把洗衣机和烘干机放进卫生间,与洗手台盆之间的三角区域设计为淋浴间
▲ 楼梯采用原木色实木踏板,玻璃扶手加上浅色墙面让楼梯空间更加通透自然
▲ 主卧,木饰面床头背景延伸至顶面,北欧风床头柜和带有简约韵味的吊灯让主卧更增添层次感
▲ 床尾置顶衣柜延伸矮柜与梳妆台,搭配复古绿窗帘更是营造出安静放松的氛围
▲ 现场制作嵌入式衣柜
▲ 卫生间采用两款不同的背景砖,空间氛围变得轻松明快
设计 | 本空设计(杭州)
微信:13616524525
后台回复「本空」可以看更多作品
媒体转载请注明装修33天并保留设计师联系方式
欢迎业主、设计师、装修公司免费投稿照片
装修33天商务合作微信:king194316
松爷店铺掌柜微信:yejia1702
本空设计其他作品推荐,点击下图查看89平文艺范北欧三室 可切换客厅模式
实用装修指南
装修33天 🏡 实用装修指南
喜欢我们的文章就随手转发到您朋友圈吧
Go to "Discover" > "Top Stories" > "Wow"