点上方蓝字可关注 微信号:装修33天
▲ 建筑面积106平,总造价38万,设计师以简约内敛的色彩结合温馨的灯光打造高雅静谧的居住环境
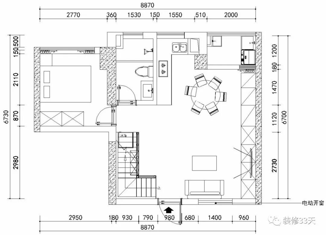
▲ 一层平面布置图
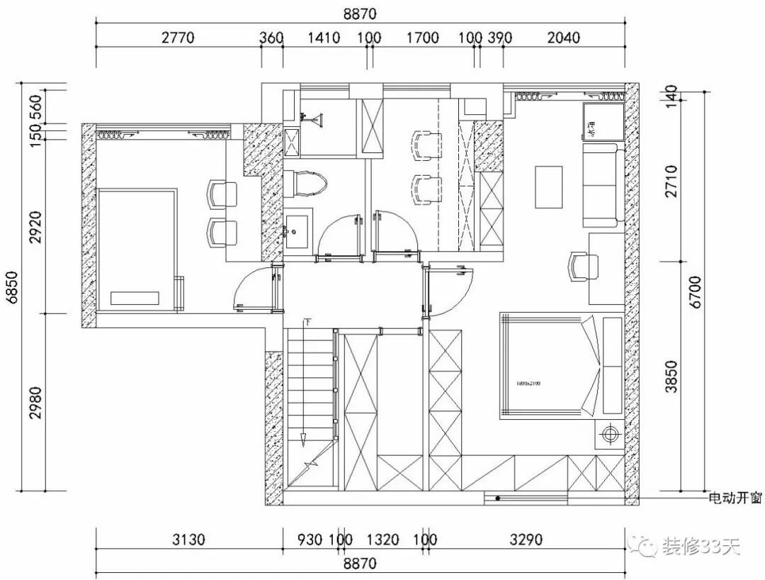
▲ 二层平面布置图
▲ 入户即为客厅,摒弃传统家具对着电视墙的摆放方式,简约的空间适当加以几何线条来修饰
▲ 以灰白为基调,简单的布艺沙发搭配挂衣架与落地灯,点缀几何图案靠枕
▲ 置身于舒适静谧的环境中,令人产生自在与放松感
▲ 大面积白色柜体勾勒黑色线条,预留电视机位,让背景墙结合收纳空间
▲ 电视背景收纳延伸出餐边矮柜,底部架空嵌入灯光,形成一体化视觉
▲ 餐厅与客厅之间用不同的灯具营造出空间的层次感,实木餐桌椅搭配精致餐具、吊灯,倍感精致
▲ 开放式厨房与餐厅相融,木质楼梯与木地板以及木质家具保持室内色调与材质的一致性
▲ 厨房的洗碗区地面特意改用小方块瓷砖铺贴,与炒菜区在视觉上和功能上进行有效区分
▲ 二楼书房,减去一切不必要的装饰,白色书架搭配木色书桌,简洁稳重
▲ 长辈房陈设简洁为主,留白空间搭配实木家具,点缀装饰画与花器
▲ 长辈房床头一角
▲ 主卧整体采用黑白灰基调打造出素净澄明的空间格调
▲ 床边的书桌兼化妆区取代床头柜,木纹背景墙舒展空间视觉效果
▲ 书桌一边增加沙发区,平日可用作休闲阅读区使用
▲ 卫生间,黑色六边形地砖搭配艺术瓷砖背景墙,营造出活跃的小空间氛围
设计 | 标点设计(深圳)
微信:15112516480
微信公众号:SZ-BDSJ
后台回复「标点」可以看更多作品
媒体转载请注明装修33天并保留设计师联系方式
欢迎业主、设计师、装修公司免费投稿照片
装修33天商务合作微信:king194316
松爷店铺掌柜微信:yejia1702
标点设计其他作品推荐,点击下图查看108平现代简美四室 时尚摩登高雅范儿
实用装修指南
装修33天 🏡 实用装修指南
喜欢我们的文章就随手转发到您朋友圈吧
Go to "Discover" > "Top Stories" > "Wow"