点上方蓝字可关注 微信号:装修33天
▲ 使用面积138平,所有公共区域都采用开放式设计,让空间连通,视野开阔
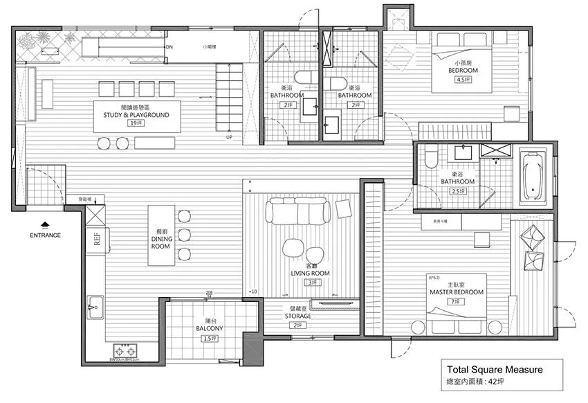
▲ 平面布置图
▲ 进门之后的区域打造成孩子的学习娱乐场所
▲ 一整面墙打造成青色的柜子,还融入了钢琴
▲ 原木色桌椅可以做为餐桌同时也可做为书桌
▲ 靠近窗户的区域内缩制作成阳台,因主人想要一个养花的区域
▲ 一个超级强大的组合柜,融合了楼梯、滑梯、地台
▲ 这组合家具便是孩子的乐园,同时也不缺实用性
▲ 作为亲子互动的绝佳场地
▲ 滑梯和秋千是孩子的最爱
▲ 滑梯和柜子是可以分离的,可以收起来
▲ 孩子开心快乐的成长不正是父母的最大心愿吗
▲ 下面的地台可以作为妈妈讲故事的地方
▲ 开放式厨房,做饭的时候可以和孩子互动
▲ 进门的黑板漆是孩子的涂鸦墙,同时也是鞋柜的门板
▲ 特意内缩打造的阳台区域(秋千可以收起来)
▲ 从厨房望向客厅
▲ 客厅弱化了,突出了孩子的游乐区
▲ 主卧靠窗的地台作为休闲区
▲ 同时两边做了收纳功能
▲ 粉色调墙面的儿童房
设计 | 好室设计(台湾)
欢迎业主、设计师、装修公司免费投稿照片
装修33天商务合作微信:king194316
松爷店铺掌柜微信:yejia1702
实用装修指南
装修33天 🏡 实用装修指南
喜欢我们的文章就随手转发到您朋友圈
Go to "Discover" > "Top Stories" > "Wow"