点上方蓝字可关注 微信号:装修33天
▲ 建筑面积300平,造价65万(不含电器),整屋既有着西方美式的大气,也不乏东方中式的简约写意
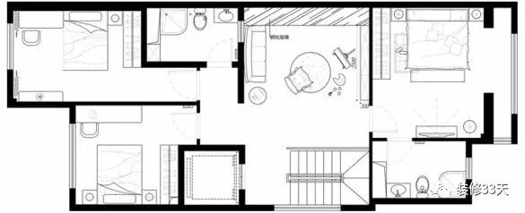
▲ 一楼平面布置图
▲ 二楼平面布置图
▲ 三楼平面布置图
▲ 地下平面布置图
▲ 客厅,轻美式与现代家具混搭,让空间更有韵味
▲ 客厅蓝色背景设计整墙书架,成为爸爸和女儿最爱的读书角
▲ 留白电视背景,底部用砖砌出地台承担电视柜功能,一侧错落墙面设置层板
▲ 客厅望向餐厅视角
▲ 客餐厅相连,地面通铺水泥灰地砖,搭配绿植与质朴的原木块,休闲自然
▲ 餐厅,美式圆桌与餐椅,可供多人用餐,木板吊顶设计,为空间增添层次
▲ 厨房,地面延续水泥灰地砖,墙面花砖铺贴,大岛台兼具吧台功能
▲ 楼梯,原木扶手+白色护栏,配合大面积玻璃窗,采光非常好
▲ 地下活动室,摆放乒乓球桌,黑板墙是业主自己动手刷的,有时候不整齐也是另外一种自然美
▲ 影音室,铆钉茶几与沙发,搭配文化砖背景墙,轻松自在
▲ 二楼客厅,彩色调空间搭配卡通软装,成为小朋友的娱乐场域
▲ 书房,原木色书桌搭配书架,墙面圆形写意挂画,营造阅读氛围
▲ 客卫,墙面铺贴美式木纹砖,淋浴房铺贴六边砖
▲ 老人房,胡桃木家具,整体稳重,色调雅致
▲ 女孩房,粉色调空间搭配白色美式家具,充满少女气息
▲ 男孩房,蓝色背景墙点缀卡通壁挂,小飞机吊灯是男孩的最爱
▲ 主卧纳入阳台设置休闲区,阳光透过白纱照到美式家具上,显得格外温馨
▲ 床尾放置蓝色复古做旧电视柜,进门右侧门后是衣帽间
▲ 主卫,灰色墙地一体砖,双人位台盆柜设计,提高使用效率
▲ 坐便区与淋浴区都用玻璃隔断,空间更加通透
设计 | 五明原创设计(北京)
微信:136503506
后台回复「五明」可以看更多作品
媒体转载请注明装修33天并保留设计师联系方式
欢迎业主、设计师、装修公司免费投稿照片
装修33天商务合作微信:king194316
松爷店铺掌柜微信:yejia1702
五明原创设计其他作品推荐,点击下图查看140平混搭亲子空间+电影发烧友专属领地
实用装修指南
装修33天 🏡 实用装修指南
喜欢我们的文章就随手转发到您朋友圈吧
Go to "Discover" > "Top Stories" > "Wow"