点上方蓝字可关注 微信号:装修33天
▲ 建筑面积100平,设计师出身的业主热衷于简单纯粹的色彩搭配,黑白灰搭配柔和的木色构成居家基调
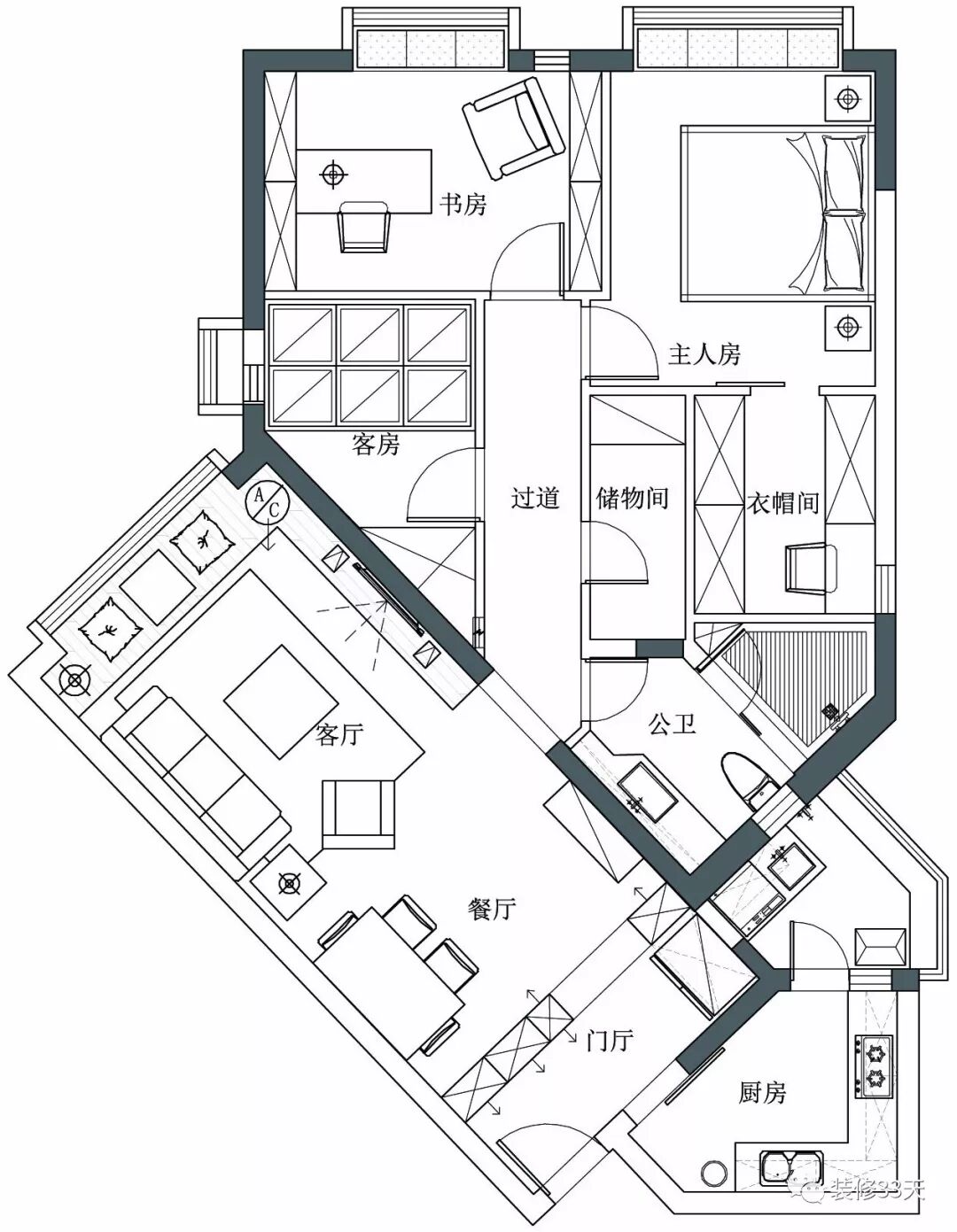
▲ 平面布置图
▲ 入户过了门厅左侧即为餐厅,右侧放置餐边柜,客餐厅连通提供充足的光线与宽敞的空间感
▲ 业主想要一个灵活的用餐区域,采用落地灯灯饰与家具,设计用餐区的同时,考虑更多的可能性,将餐桌靠墙,则是一个宽敞的办公区域
▲ 简单的黑白灰与原木色的搭配,构成客餐厅文艺温馨的色彩基调,绿色植物作为点缀,整个空间欣欣向荣
▲ 客厅加宽窗前的地台,原木色一直从墙上延展下来,形成一个整体的空间
▲ 木质地板搭配留白墙面,采用灰色布艺家具与蓝灰色调装饰画修饰整个场域
▲ 落地窗带来充沛阳光的同时,也带来窗外噪音的困扰,室内新风系统减少开窗带来的不便,隔音隔光窗帘确保安静的居家环境
▲ 六边形茶几组带来一丝趣味性
▲ 延续黑白灰基调的书房,整墙半开放式书墙做背景,采用可移动书桌椅,让空间具有变化的可能性
▲ 飘窗加做软垫,打造书房的休闲一隅,同时为空间提供充足的采光
▲ 为了更合理的利用每一寸空间,在书房墙面隐藏壁挂床,有需要的时候兼做客房使用
▲ 铺好双人壁挂床后的空间效果
▲ 主卧,木色从地面一直延伸至半高床背,蓝色背景墙面搭配灰色窗帘,线性吊灯与装饰画以及绿植修饰提升空间颜值
▲ 原木色柔和的色调营造舒适的睡眠环境
▲ 为了使功能性更为丰富,在主卧内设置衣帽间,并用推拉门分隔机能空间
设计 | 尺子室内设计(深圳)
电话:0755-26699985
微信:chizisheji8
后台回复「尺子」可以看更多作品
媒体转载请注明装修33天并保留设计师联系方式
欢迎业主、设计师、装修公司免费投稿照片
装修33天商务合作微信:king194316
松爷店铺掌柜微信:yejia1702
尺子室内设计其他作品推荐,点击下图查看89平现代简约风三室 餐厅海鸥吊灯美极了
实用装修指南
装修33天 🏡 实用装修指南
喜欢我们的文章就随手转发到您朋友圈吧
Go to "Discover" > "Top Stories" > "Wow"