点上方蓝字可关注 微信号:装修33天
▲ 建筑面积89平,造价30万(不含家电),本案业主与父母同住,在设计方案的考量上也融入父母的想法
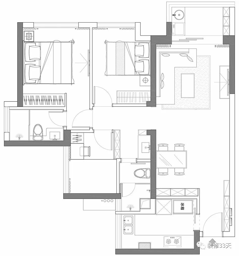
▲ 平面结构图
▲ 平面布置图
▲ 客厅,通铺深色木地板,立面背景采用暖米色,立于小美式的休闲基调中
▲ 米白色沙发,点缀抱枕,搭配经典美式吊灯,特色鲜明又不落俗套
▲ 采用简单温馨的配色,以挂画和小饰品增添都市气息
▲ 客餐厅互通,以通往私领域的过道为分界
▲ 餐厅设置于入户的左侧,留白硬装搭配深色餐桌椅,餐边柜与鞋柜满足生活所需
▲ L型厨房,半开放的空间,简单又实用
▲ 中间选用六边形墙砖,不一样的纹理,是温度与色泽的点缀,怡然自得
▲ 卫生间干湿分离,台盆柜一面设计一整面储物柜,提升使用效率,也充分利用了空间
▲ 书房,榻榻米结合书桌书架,满足多种功能需要
▲ 次卧,浅绿色床背景,搭配现代美式高背床与浅蓝色窗帘,清新干净
▲ 床头一角,借助草蔓和飞鸟的装饰,营造自然的基调
▲ 主卧,床头用蓝白对比色烘托出满室的温馨优雅,奶黄色窗帘也为卧室注入明快的色调
▲ 主卫,木纹砖搭配哑光墙砖,玻璃淋浴房做到干湿分离
设计 | 漾设计(深圳)
微信:13922880680
后台回复「漾设计」可以看更多作品
媒体转载请注明装修33天并保留设计师联系方式
欢迎业主、设计师、装修公司免费投稿照片
装修33天商务合作微信:king194316
松爷店铺掌柜微信:yejia1702
漾设计其他作品推荐,点击下图查看100平现代三室 柔和配色刚性线条
实用装修指南
装修33天 🏡 实用装修指南
喜欢我们的文章就随手转发到您朋友圈吧
Go to "Discover" > "Top Stories" > "Wow"