点上方蓝字可关注 微信号:装修33天
▲ 实用面积126平,居家整体美观舒适,在小的方面则通过细节处的打磨,使质感远超预期
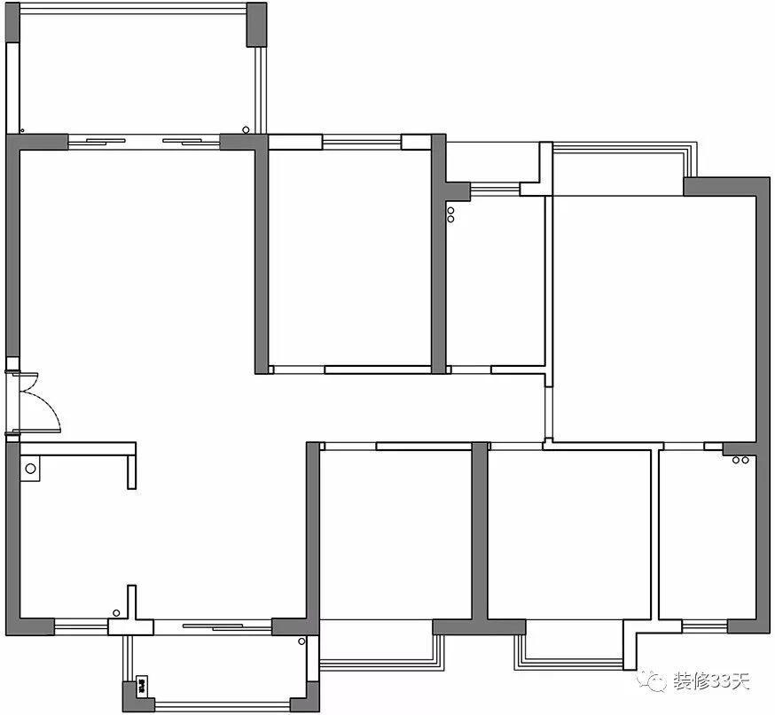
▲ 平面结构图
▲ 平面布置图
▲ 客厅以白色为主,灵活搭配灰色与蓝色,在色调的深与浅之间,空间更显通透、宽阔、明亮
▲ 烤漆材质的电视柜有着如钢琴般亮丽的光泽,与大理石的光滑如脂相得益彰,完美利用户型特点
▲ 连通透的玻璃器皿和小株绿植都在欢呼雀跃
▲ 客厅,蓝灰色家具搭配石材茶几,简约的吊顶采用点光源与灯带的形式取代传统主灯,空间更加现代时尚
▲ 客餐厨区域,三室连通,空间宽敞明亮,立面采取空间延伸设计
▲ 餐厅,白色烤漆和黑色玻璃材质搭配灯光完美融合,既是墙面装饰又是储物柜,出乎预料的简单、时尚
▲ 餐边平开玻璃门柜体,中间特意设置开放区搭配灯带,两边玻璃门内作收纳,整体线条干净利落,为空间勾画出简洁大气的韵味
▲ 餐厨空间融合在一起,大面积餐边柜解放厨房空间,仿大理石墙面搭配烤漆橱柜门,简洁大方
▲ 客卫整体通铺石色瓷砖,隐形光源的墙镜增加现代感,黑白灰的配色经典耐看
▲ 多功能房,深与浅交错使用,充满简洁现代感,简洁、纯粹的白色中,调和进木制品,瓷砖与钢琴的黑色
▲ 儿童房更注重灵活性,给孩子留下足够的活动空间
▲ 蓝色背景墙搭配原木肌理圆弧型床背,设置简洁的白色大衣柜,童趣儿童房兼具实用性
▲ 主卧延续中性色彩,以白色烤漆面板和灰蓝色墙漆的组合造型作为卧室背景
▲ 在衣柜同比例处安置一条凹位,扩充空间水平方向的视觉感,内置灯带呈现出浪漫柔和的视觉
▲ 主卧步入式衣帽间,衣柜中间的飘窗部分做延伸处理,加高台面设计成储物柜,作为女主人的梳妆台
▲ 衣帽间柜体暗藏玄机,推开白色柜门,则是隐藏的主卫入口
设计 | 漾设计(深圳)
微信:13922880680
后台回复「漾设计」可以看更多作品
媒体转载请注明装修33天并保留设计师联系方式
欢迎业主、设计师、装修公司免费投稿照片
装修33天商务合作微信:king194316
松爷店铺掌柜微信:yejia1702
漾设计其他作品推荐,点击下图查看89平温馨实用现代美式三室
实用装修指南
装修33天 🏡 实用装修指南
喜欢我们的文章就随手转发到您朋友圈吧
Go to "Discover" > "Top Stories" > "Wow"