点上方蓝字可关注 微信号:装修33天
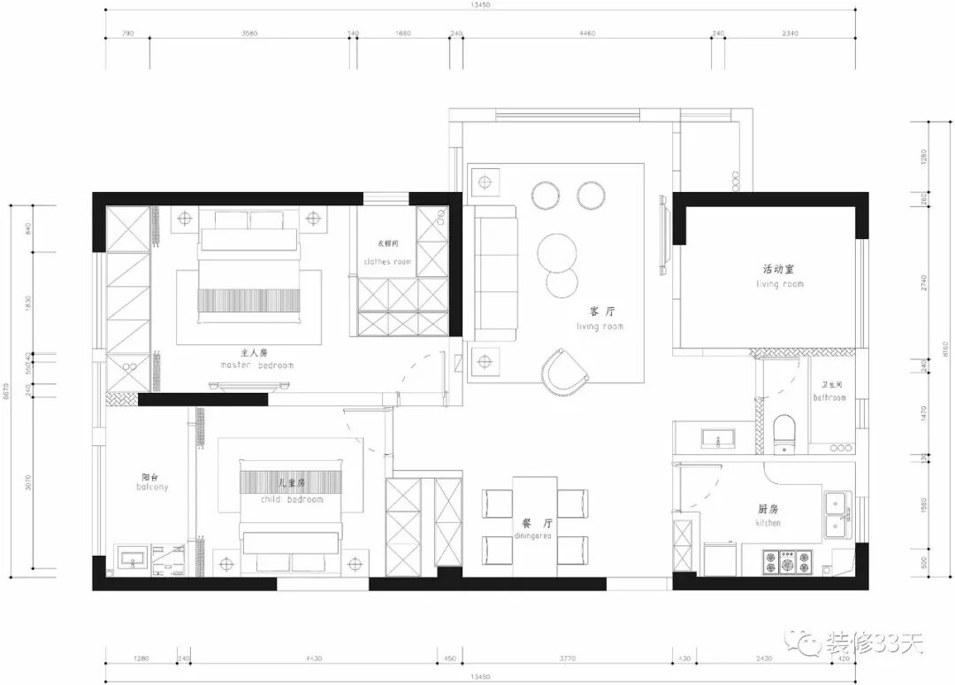
▲ 建筑面积110平,造价30万,居家以少女粉与纯粹白为主色调,辅以金色点缀,打造甜而不腻的视觉效果
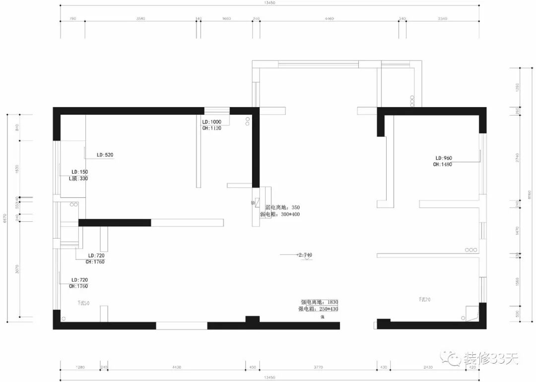
▲ 平面结构图
▲ 平面布置图
▲ 设计师选择女业主喜爱的粉色调护墙板搭配,丰富空间层次
▲ 金属色泽让整个客厅披上一层精致的气息
▲ 灰色窗帘与粉色搭配,圆润的小单椅,栖息的鸟落地灯,浓浓的少女心更为突出,不浮夸,清新雅致
▲ 轻巧的金属元素小家具,打造轻盈感休闲一隅
▲ 客餐厅之间没有明显的界限划分,电视背景墙的隐形门设计在不破坏空间完整性的同时又能达到实用效果
▲ 餐厅也与客厅保持统一,用粉色半护墙贯穿整个空间,定制柜子增加收纳空间,加入原木色给予用餐空间温馨感
▲ 厨房经典白色地铁砖给予生活满满的仪式感,U形操控台面提高空间使用率
▲ 主卧选择浅蓝灰为主色调,千鸟格家具与金色元素的修饰,给人优雅静谧之感
▲ 同色系挂画配合软装点缀给予卧室出众气质
▲ 打造储物飘窗,加软垫增加主卧的休闲一角,拼色窗帘与整体色调和谐搭配
▲ 卫生间干湿分离易于打理,花砖造型赋予空间惊喜
▲ 卫生间湿区整体通铺六边形瓷砖,在白色瓷砖中零星添加深灰色六边砖,为空间增添灵动性
设计 | 海航设计(常州)
微信:15189760099
后台回复「海航」可以看更多作品
媒体转载请注明装修33天并保留设计师联系方式
欢迎业主、设计师、装修公司免费投稿照片
装修33天商务合作微信:king194316
松爷店铺掌柜微信:yejia1702
海航设计其他作品推荐,点击下图查看高级灰低调美式韵味 优雅浪漫四口之家
实用装修指南
装修33天 🏡 实用装修指南
喜欢我们的文章就随手转发到您朋友圈吧
Go to "Discover" > "Top Stories" > "Wow"