点上方蓝字可关注 微信号:装修33天
▲ 建筑面积129平,造价45万(部分家电),玄关口设计置物台与衣帽钩,方便进出门换鞋挂衣
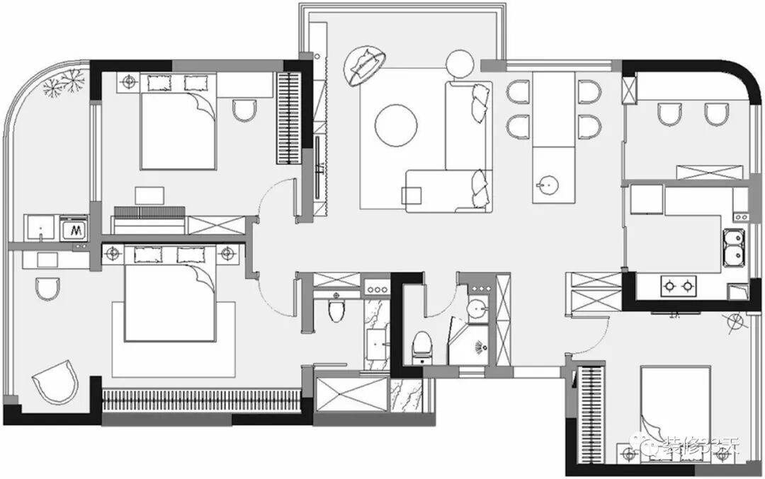
▲ 平面布置图
▲ 客厅纳入阳台延展客厅背景墙,多处运用黑色金属材质,细节凸显空间的冷静硬朗
▲ 十分适合二人世界的模块沙发,其较低的靠背模糊了空间界限
▲ 这款 Bubble Chair,躺在里面享受这一刻女人应得的包容和安全感
▲ 电视背景墙从原阳台延伸至客厅,木质拉槽中嵌入黑框与电子壁炉
▲ 餐厅,餐桌连接吧台,分出厨房部分功能之外,其正对玄关口的位置也能成为进户外出时常用物品的置物台
▲ 黑白基调的空间,部分灯具用上玫瑰金配色,往纯粹的空间里添了点轻奢
▲ 运用细框玻璃移门来增加空间延伸性,光线也不受阻碍的引入室内
▲ 厨房,简约的材质搭配,黑白灰的色调简洁耐脏,同时与整室色调相融合
▲ 在过道吊顶上增加两条细线,空间感更强
▲ 过道墙面设计错落的开放展示柜,增加储物空间的同时以一种简约的形式增添墙面的修饰性
▲ 书房,留白的硬装基调搭配原木色家具,设计长条靠墙写字台,上方对应长度的打造书柜
▲ 客卧留给父母或者来客时暂住,黑白灰简约风的空间,通过装饰画与吊灯增添个性格调
▲ 主卧,将生活阳台分隔出一半内包,床尾一整面的大暗色玻璃柜子,镜面效果也可以呈现大空间的视觉
▲ 天然石材打造自然纹理的床背景,搭配黑色皮质大床,空间色调赋有层次
▲ 在黑白对比的空间中加入玫瑰金与玻璃制品的小吊灯,为整室注入一份精致感
▲ 纳入阳台后,扩大主卧空间,阳光休闲一角打造成女主梳妆区,整面落地梳妆镜,给梳妆台带来一种奇妙的悬浮感
设计 | 文青室内设计(杭州)
微信:13588798462
后台回复「文青」可以看更多作品
媒体转载请注明装修33天并保留设计师联系方式
欢迎业主、设计师、装修公司免费投稿照片
装修33天商务合作微信:king194316
松爷店铺掌柜微信:yejia1702
文青室内设计其他作品推荐,点击下图查看89平现代简约三室 横厅大窗户透明大移门
实用装修指南
装修33天 🏡 实用装修指南
喜欢我们的文章就随手转发到您朋友圈吧
Go to "Discover" > "Top Stories" > "Wow"