点上方蓝字可关注 微信号:装修33天
▲ 建筑面积110平,半包8万,全屋颜色采用马卡龙色系,使整个居室温馨、活泼、清爽
▲ 平面结构图
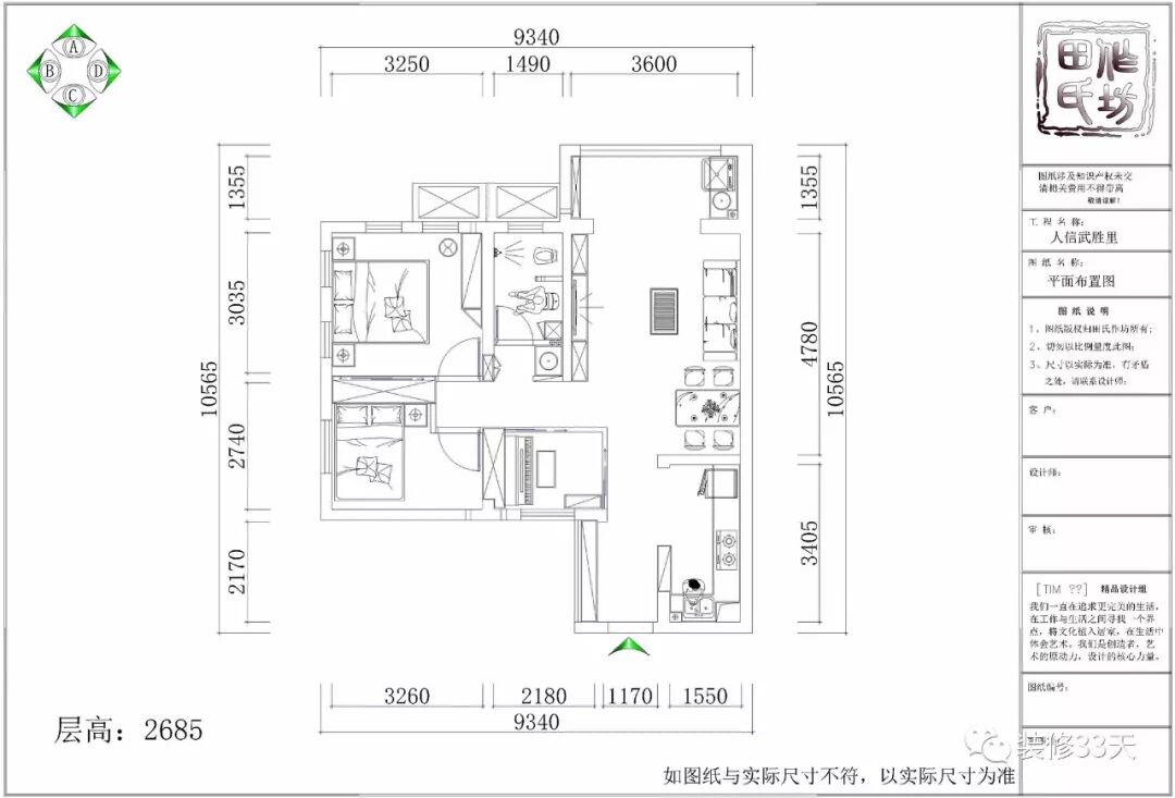
▲ 平面布置图
▲ 阳台与客餐厅相连,大面积玻璃窗使空间通透明亮,墙面柜体延伸视觉感
▲ 灰色布艺沙发背景墙采用石膏线与马卡龙色系乳胶漆结合,并划分客餐厅场域
▲ 电视背景设置整墙储物柜,使小空间拥有更多收纳机能,灰色与木色的搭配,增添层次感
▲ 阳台,复古花砖铺地,原木茶几与Y椅,加入精致的茶具,将阳台空间变成悠然自得的品茗一角
▲ 餐厅,选用可折叠餐桌椅解放空间,墙面点缀鹿头装饰与组合壁画
▲ 将厨房与入户过道之间的墙体打通,让空间采光充足,U型厨房设计,使操作动线更加流畅
▲ 钢琴房,两面墙体用玻璃梭门代替,拉开梭门使整个过道与餐厅空间更加宽敞,活动区域更大
▲ 琴房地面铺贴彩色花砖,将梭门闭合在设备齐全的空间中,享受弹琴的曼妙时光
▲ 卫生间,干湿分区设计,设置半高隔断墙,防止台盆水向外溅出
▲ 圆镜上方增设精致的复古暖光壁灯,使小小的空间更加温馨
▲ 主卧,延续马卡龙色系,背景墙设置一扇小窗,窗帘与一侧装饰画色系相结合,形成整面背景墙
设计 | 田氏作坊设计事务所(武汉)
微信:17771837933
后台回复「田氏」可以看更多作品
媒体转载请注明装修33天并保留设计师联系方式
欢迎业主、设计师、装修公司免费投稿照片
装修33天商务合作微信:king194316
松爷店铺掌柜微信:yejia1702
田氏作坊设计事务所其他作品推荐,点击下图查看120平复古混搭三室 彩色玩出艺术感
实用装修指南
装修33天 🏡 实用装修指南
喜欢我们的文章就随手转发到您朋友圈吧
Go to "Discover" > "Top Stories" > "Wow"