点上方蓝字可关注 微信号:装修33天
▲ 建筑面积110平,玄关两盏壁灯兼具挂钩功能,一张小型换鞋凳造型简洁
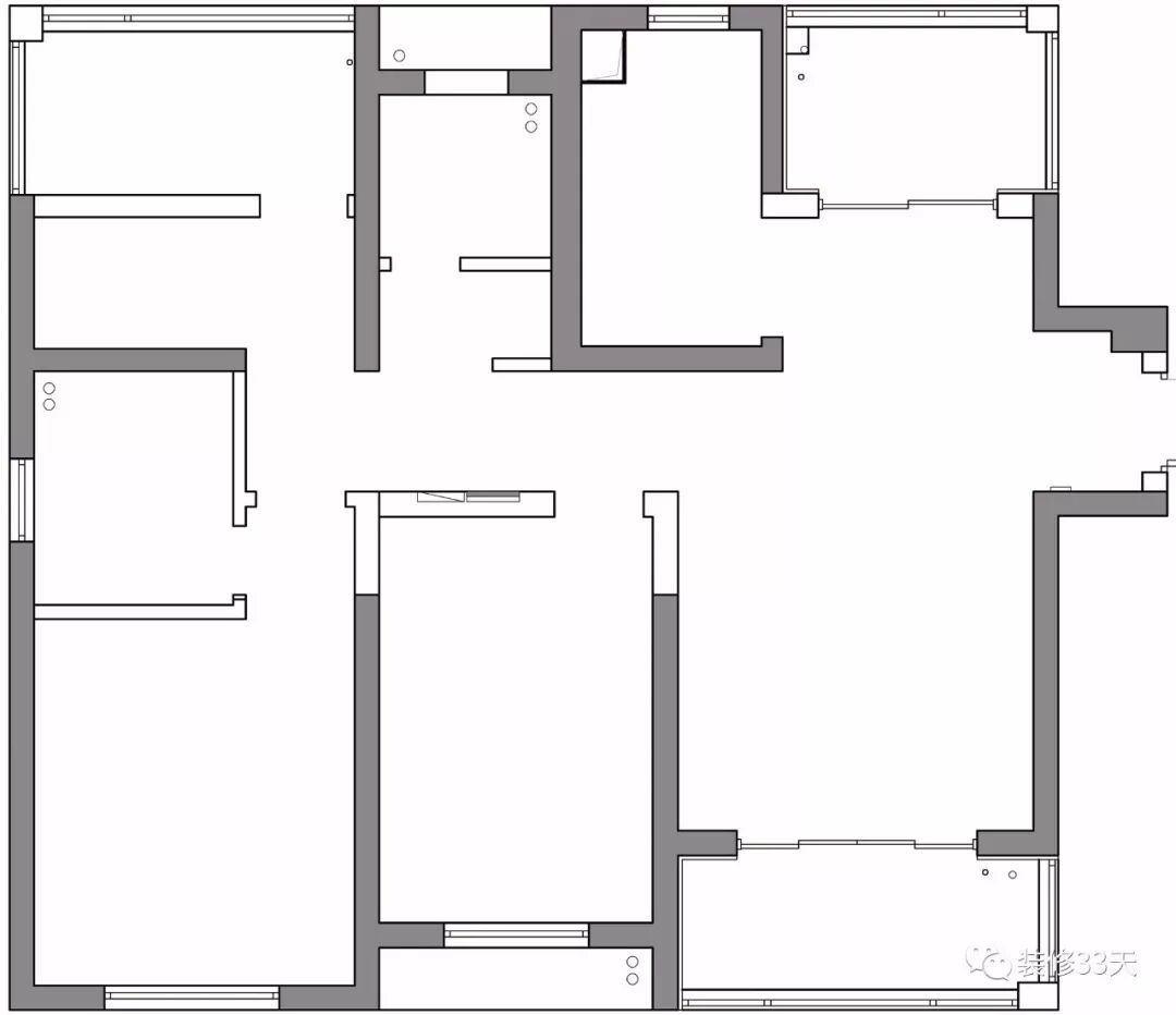
▲ 平面结构图
▲ 平面布置图
▲ 客餐厅以入户过道作自然场域分界
▲ 整体配色以灰色为主轴,暖木棕、黛绿、靛蓝、粉色等根据不同空间需要进行搭配点缀融入
▲ 客厅地面通铺原木色地板,顶面通过点光源取代主灯,加之阳台落地窗景,渗透的光线让空间显得更宽敞
▲ 灰色皮质沙发搭配金边艺术装饰画,无论是简约还是时尚,营造属于自己的居家氛围
▲ 安静的灰,温暖的木棕,金色线性吊灯点缀
▲ 打造回字型系统柜,中间留空,安装电视机,围绕一圈收纳空间,打造高颜值背景墙的同时提供超强储物的功能
▲ 走廊端景
▲ 规划后的餐厅散入充足采光,餐边的两组柜体,满足不同的餐边需求
▲ 餐厅软木墙、大理石餐桌、布艺餐椅、木质餐边柜,在结构造型和线条颜色上明确空间的完整性
▲ 长虹玻璃赋予厨房和餐厅轻盈又浪漫的界限
▲ 女儿房,以窗口的光线为契机,配合特别设计的墙面分色,房间、书柜、窗外,层次分明
▲ 床头一角充满ins风格调
▲ 主卧,细致的金属壁灯点亮沉稳的深色背景,皮料与布艺呈现静谧质感,材质和布局之间相互呼应
▲ 把原本储藏室和阳台整合成独立衣帽间,以简化明了的线条,清新柔和的色彩,融合小资情调和生活需求
设计 | 北岩设计(南京)
微信:18052030218
后台回复「北岩」可以看更多作品
媒体转载请注明装修33天并保留设计师联系方式
欢迎业主、设计师、装修公司免费投稿照片
装修33天商务合作微信:king194316
松爷店铺掌柜微信:yejia1702
北岩设计其他作品推荐,点击下图查看大书墙加移门,118平现代混搭新中式
实用装修指南
装修33天 🏡 实用装修指南
喜欢我们的文章就随手转发到您朋友圈吧
Go to "Discover" > "Top Stories" > "Wow"