点上方蓝字可关注 微信号:装修33天
▲ 使用面积80平,总造价35万,入户设置花砖落尘区,比室内降低3cm,左侧利用包柱做一面全身镜,并连接一组鞋柜
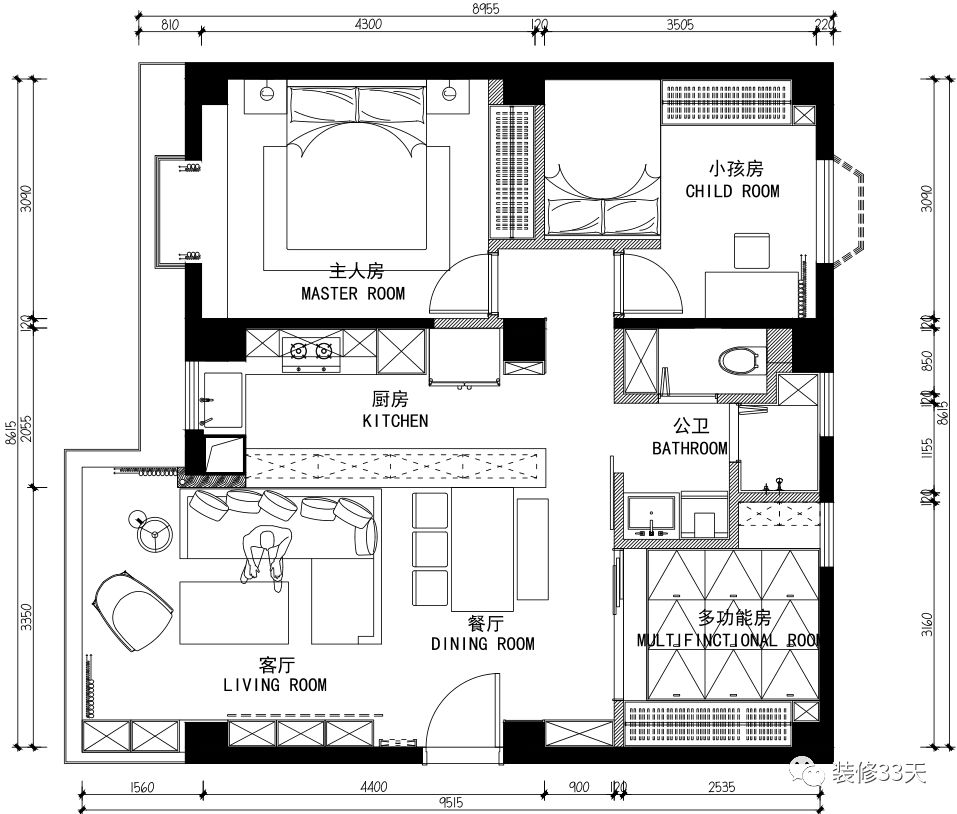
▲ 平面布置图
▲ 进门视角,整面背景墙设计一个加长版吧台窗口,让家通透有层次
▲ 一楼住宅,阳台靠着道路,并无观景之用,顾将阳台纳入客厅使用,增加公领域面积
▲ 客厅,浅木色地板搭配大白墙,极简顶面无主灯设计,给人干净利落的视觉感
▲ 藏青色转角沙发配镂空吧台背景,屋型挂钟与黑色树脂小鸟摆件呼应搭配,为空间增添趣味与生机
▲ 造型圆润的实木茶几,纹理自然与整室木作呼应,圆润的造型为孩子提供更为安全的居家环境
▲ 设计一整面置顶定制柜兼电视背景墙,并巧妙的把阳台门的立柱包裹起来
▲ 客厅望向餐厅视角
▲ 餐厅,原木北欧风的餐桌椅,靠着吧台墙面,紧挨厨房,简单的一盏线性吊灯,营造温馨的就餐氛围
▲ 打开原本拥挤的厨房,吧台设计既是客餐厅背景,又兼作厨房料理台与橱柜的功能
▲ 餐厅后方设计成多功能室,选用更为美观的三开式推拉门,木结构中间镶嵌夹丝玻璃,透光不透影
▲ 多功能室内部打造榻榻米,写字台与吊柜,兼具书房,客房,储物等功能,将来还可作儿童房
▲ 走廊,白墙搭配各式木质门片,起到基本的空间隔断以外,还修饰了原本单调的过道
▲ 次卧是大宝的房间,靠墙木作床铺,连接大面积置顶衣柜,满足卧室的基本功能
▲ 衣柜右侧打造一列开放式书柜,后方隐藏立柱,窗户铺上实木台面,让空间显得更温润
▲ 主卧延续整室的简洁清爽,木地板搭配实木家具,降低窗户高度设计成储物飘窗
▲ 主卧床侧的木色衣柜,用色与门片协调呼应,折叠门的开合方式,可整面打开更易取物
▲ 将卫生间改造成三分离的形式,并兼具洗衣区的功能,对于4口之家来说,此空间格局设计:好用!
设计 | 域舍设计(厦门)
微信:13255066160
后台回复「域舍」可以看更多作品
媒体转载请注明装修33天并保留设计师联系方式
欢迎业主、设计师、装修公司免费投稿照片
装修33天商务合作微信:king194316
松爷店铺掌柜微信:yejia1702
域舍设计其他作品推荐,点击下图查看设计师自己的小家,20万73平清浅北欧风
实用装修指南
装修33天 🏡 实用装修指南
喜欢我们的文章就随手转发到您朋友圈吧
Go to "Discover" > "Top Stories" > "Wow"