点上方蓝字可关注 微信号:装修33天
▲ 建筑面积89平,总造价28万,入户用玄关柜与装饰画布置端景,一侧分体鞋柜补充入户收纳机能
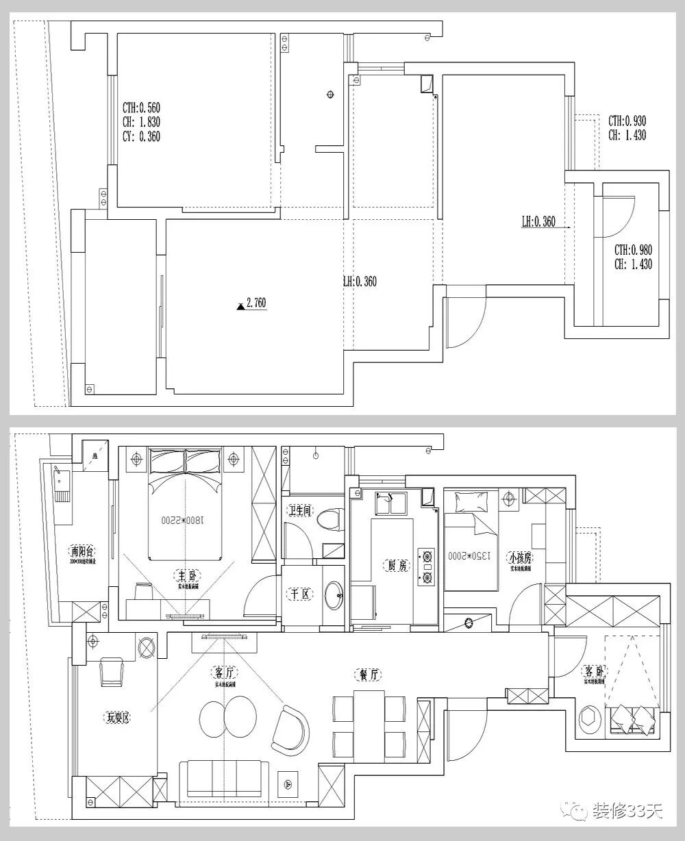
▲ 平面布置图
▲ 从入户视角望向公领域
▲ 简约款餐桌椅靠墙放置,留出充足的过道空间
▲ 嵌入式柜体作餐边柜,紫色背景点缀装饰画结合玻璃吊灯营造氛围
▲ 公领域空间注重功能性的同时,通过简化的设计与明快的色彩,北欧风中带着现代感
▲ 用几何图案墙纸铺贴出跳跃感背景墙,沙发左右两边墙面各设计收纳机能,有效利用空间墙体
▲ 电视背景墙没有过多修饰,浅紫色乳胶漆墙面搭配电视柜与装饰画,干净简单
▲ 将阳台纳入客厅,扩大使用面积的同时让室内光线充足,地台式休闲一角,温馨静谧
▲ 地台休闲区增设出一组储物柜,收纳功能强
▲ 厨房地面采用黑白六边形地砖铺贴,并用花砖点缀,白色墙砖搭配白色橱柜
▲ 儿童房延续木地板,搭配暖色壁纸,可爱的床品与星星吊灯,为室内增添一份童趣
▲ 木作衣柜连接写字台与层板书架,为空间不大的儿童房增加出更多机能
▲ 主卧浅棕色床背景,与深色窗帘,搭配浅色调家具,局部点缀金色元素增加质感
▲ 卫生间干湿分区,提高使用效率
▲ 卫生间通铺白色系瓷砖,同色不同形状的瓷砖来区分层次
设计 | 恒彩设计(杭州)
微信:18968018121
后台回复「恒彩」可以看更多作品
媒体转载请注明装修33天并保留设计师联系方式
欢迎业主、设计师、装修公司免费投稿照片
装修33天商务合作微信:king194316
松爷店铺掌柜微信:yejia1701
恒彩设计其他作品推荐,点击下图查看89平现代简约两室 主卧套房大宅设计感
实用装修指南
装修33天 🏡 实用装修指南
喜欢我们的文章就随手转发到您朋友圈吧
Go to "Discover" > "Top Stories" > "Wow"