点上方蓝字可关注 微信号:装修33天
▲ 使用面积138平,中国红玄关柜,配上黑色隔断,进门给人以强烈的色彩冲击,吸引视线,结合屏风营造东方气质
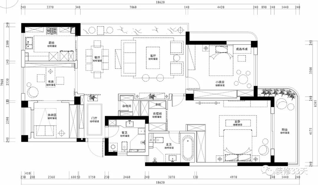
▲ 平面结构图
▲ 平面布置图
▲ 鞋柜与换鞋凳结合设计,既保持简洁的视觉效果,又提升实用价值
▲ 从玄关望向客餐厅,整体配色稳重又不失情致,配合装饰画,装点出风华
▲ 客厅,采用围合式沙发布置,增进家人在客厅的互动性
▲ 客厅用投影仪取代电视机,平时收藏进入吊顶之中,在不破坏整体风格中,简洁实用,富有科技感
▲ 设计地台式休闲区,连接客餐厅
▲ 咖啡色皮质沙发,侧边采用湖蓝色边柜与装饰画丰富过道空间
▲ 公领域的大横厅规划开放式客餐厅布局,一体式的简洁顶面无主灯设计,黑色不锈钢饰带勾勒方正空间
▲ 在餐厅就餐的同时,可以兼有观影功能
▲ 由房间改造的书房,哑口采用中式园林元素,材质却又是硬朗的黑色不锈钢,既传统又时尚
▲ 书房整排格子大书柜,收藏丰富,可容纳大量书籍,翘头改良官帽椅,正气低调
▲ 儿童房主题墙纸活泼温馨,配合同色床品,互相之间辉映成趣
▲ 在主卧入口增设一组大衣柜,提供更多的收纳空间
▲ 主卧整体简洁设计,床头背景一抹色,搭配绛紫色床品,橙色抱枕点缀色彩,空间呈现出一种干净整洁的视觉效果
▲ 床尾配置梳妆桌与斗柜,为主卧增添更多功能性
▲ 卫生间,水泥灰色的瓷砖墙面搭配做旧柜门的台盆柜,现代与传统的结合
设计 | 辉度空间设计(杭州)
微信:18072920063
后台回复「辉度」可以看更多作品
媒体转载请注明装修33天并保留设计师联系方式
欢迎业主、设计师、装修公司免费投稿照片
装修33天商务合作微信:king194316
松爷店铺掌柜微信:yejia1702
辉度空间设计其他作品推荐,点击下图查看135平新中式四室 撞色配冷灰显贵族感
实用装修指南
装修33天 🏡 实用装修指南
喜欢我们的文章就随手转发到您朋友圈吧
Go to "Discover" > "Top Stories" > "Wow"