点上方蓝字可关注 微信号:装修33天
▲ 建筑面积98平,玄关距离短且狭窄,北欧风格的鞋柜和地毯体积小颜色轻,缓解小空间的压抑感
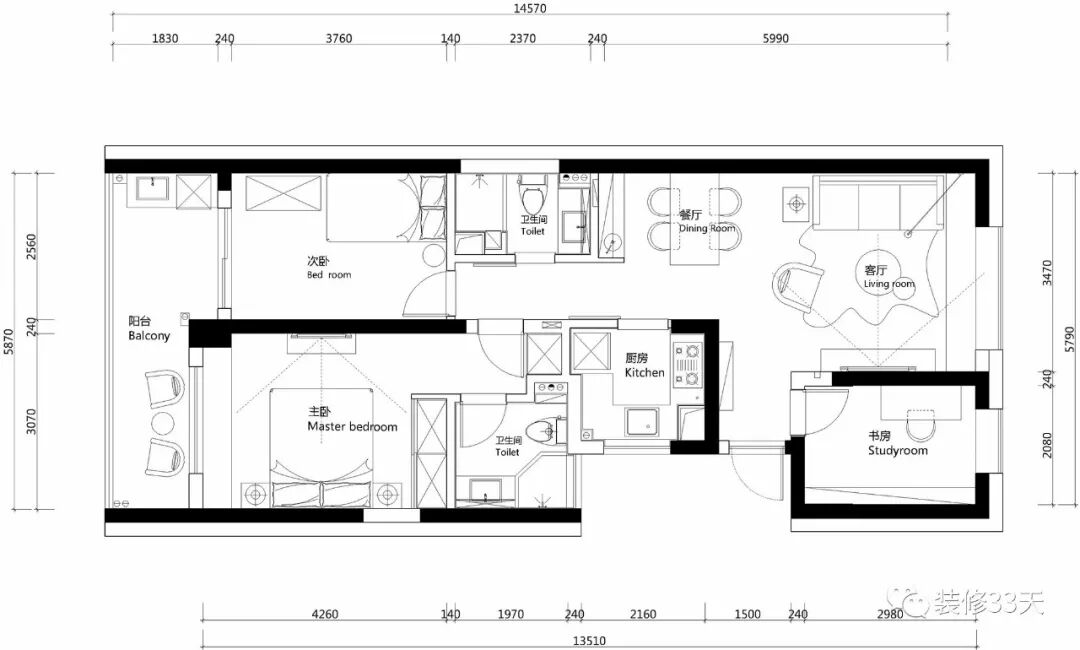
▲ 平面布置图
▲ 夹边套的客厅,空间设计确保采光充足,地板原木色调,摸上去会有木纹肌理感
▲ 轨道灯代替主灯,搭配大飘窗和色调轻浅的家具,轻盈又温馨
▲ 墙面刷淡淡的绿色乳胶漆,装点装饰画,显得很清新
▲ 电视装壁挂的架子,可切换电视机角度,满足边吃饭边看电视的小愿望
▲ 客厅望向餐厅视角
▲ 简单清爽的原木色餐厅,延续客厅格调,增添些许绿植点缀,更显清新
▲ 一旁增加带水吧功能的餐边柜,加装咖啡机、净水器和自动热水壶等设备
▲ 4平米的厨房里设备一应俱全,橱柜配色风格保持一致,墙砖地砖均选用了灰色水泥砖,沉稳耐脏
▲ 客卫面积较小,淋浴房做三联动移门,壁龛和镜柜都十分实用
▲ 书房,书桌椅来自木智工坊,哑光原木质地很高级,后方加一面书柜以兼顾收纳和展示的需求
▲ 次卧实际面积很小,采用木地板搭配大白墙,放大视觉空间,床靠墙放置,留出合理过道
▲ 次卧使用频率不高,设计和布置都以简单为主
▲ 主卧的床头柜,床靠背和飘窗是一体化设计,配合MUJI无靠背收纳床,整体风格清新简约
▲ 浅灰色的背景墙和水泥灯稍稍添了些清冷气息,衣橱采用长虹玻璃搭配黑边金属移门设计,内部安装光源,开门即亮
▲ 大斗柜十分适合分类收纳,衣架是获得红点奖的PIY
▲ 主卫搭配使用灰色和黑色的水泥砖,风格更加冷静利落
对本案例墙面色号与家具材质尺寸有兴趣的同学可以在微信对话框(不是本文末)回复数字关键词获取:190521
设计 | TK原创设计(杭州)
微信:tk_design
电话:15957143882
后台回复「TK」可以看更多作品
媒体转载请注明装修33天并保留设计师联系方式
欢迎业主、设计师、装修公司免费投稿照片
装修33天商务合作微信:king194316
松爷店铺掌柜微信:yejia1702
TK原创设计其他作品推荐,点击下图查看89平现代北欧三室 小而精致带阁楼
实用装修指南
装修33天 🏡 实用装修指南
喜欢我们的文章就随手转发到您朋友圈吧
Go to "Discover" > "Top Stories" > "Wow"