点上方蓝字可关注 微信号:装修33天
▲ 建筑面积89平,总造价35万,「简单、大方、高端、温馨」是业主对未来的家的期待
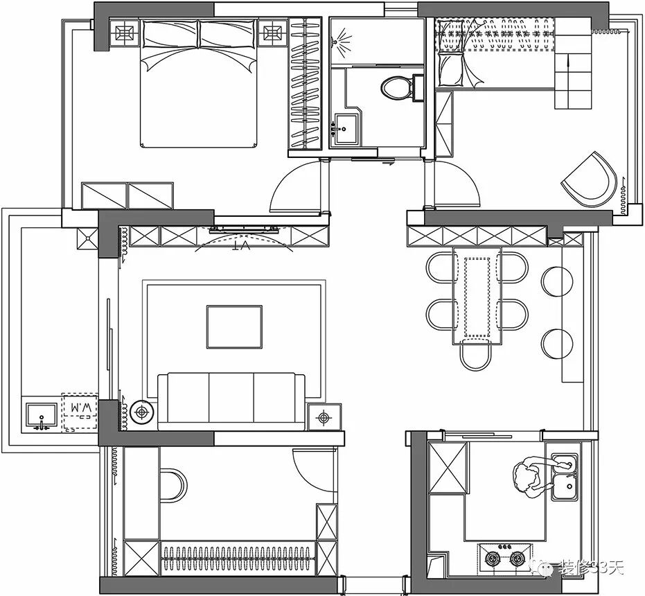
▲ 平面结构图
▲ 平面布置图
▲ 入户视角,过道将公领域自然分隔成客餐厅场域
▲ 低饱和基调的客厅,大白墙搭配深灰色主沙发,背景辅以装饰画与射灯灯光修饰
▲ 黑色铁艺茶几、金属元素落地灯,巧妙地将生活形态与视觉美学相融合,整个空间尽显温馨又不失大方
▲ 黑色元素的魔豆灯与家具以及深色窗帘相呼应,整墙白色电视柜兼具收纳功能
▲ 整洁干净的餐厅,将美感和收纳发挥到了极致
▲ 餐边柜采用一柜到顶的设计,中间的开放式收纳区则可随手放置一些物品,十分灵活
▲ 利用餐厅后方的靠窗位置,打造观景吧台,兼作简餐与休闲工作区
▲ 厨房,黑白灰现代风的经典配色,简约不过时
▲ 餐厨区域望向客厅,顶面采用艺术涂料,制造空间的高级感
▲ 儿童房别出心裁的使用上床下柜的设计,满足强大收纳功能的同时给孩子提供一个相当宽敞的空间
▲ 主卧的设计讲究功能与形式的统一,在整体白色墙面的基调下,搭配深色活动家具,一侧线性吊灯丰富空间层次
▲ 灰色布艺窗帘和浅橙色布艺床品,和谐的韵律感浑然天成,再配上些许绿植作为点缀,整个房间顿时无比温暖
▲ 卫生间,空间虽小,功能俱全,精巧的设计加上配色,使整个空间尽显高级
设计 | 漾设计(深圳)
微信:13922880680
后台回复「漾设计」可以看更多作品
媒体转载请注明装修33天并保留设计师联系方式
欢迎业主、设计师、装修公司免费投稿照片
装修33天商务合作微信:king194316
松爷店铺掌柜微信:yejia1702
漾设计其他作品推荐,点击下图查看126平现代简约三室,线条时尚质感高级
实用装修指南
装修33天 🏡 实用装修指南
喜欢我们的文章就随手转发到您朋友圈吧
Go to "Discover" > "Top Stories" > "Wow"