点上方蓝字可关注 微信号:装修33天
▲ 使用面积110平,精装房改造价16万(不含电器),设计师在原有格局下,通过软装与简易施工,提高空间利用率,让整个家充满个性独特的韵味
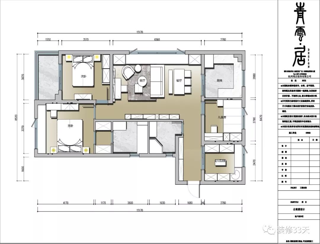
▲ 平面结构图
▲ 平面布置图
▲ 整个大横厅通过机能家具分割出客餐厅区域,长长的大飘窗提供休闲与采光功能的同时连接两个场域
▲ 要如何挽救精装房保留红棕色地板后的压抑感,设计师重在色彩搭配上面下功夫
▲ 使用冷色系如蓝色墙面柜体等,形成强烈的视觉对比冲击,让视觉上移,减少地面对空间造成的压抑
▲ 黄棕色沙发让空间的色彩更加饱满,变为复古与时尚的结合,选用灰色地毯将深色地板局部遮挡,与红棕色地板搭配毫无违和感
▲ 客厅飘窗前后两处制作宽为96公分,深度67公分的柜子,将客厅一角安置电脑桌,上方两个置物架,个性又实用
▲ 摒弃传统电视墙正对沙发的格局,将电视背景墙移至走廊,一侧现场打造出独特造型柜连接电视柜
▲ 客餐厅开放式设计,沙发后方放置简约餐桌椅,搭配现代风吊灯
▲ 精心布置的桌面、装饰柜,多了些生活中的仪式感,大面积飘窗为空间增加采光度
▲ 厨房与餐厅相邻
▲ 多功能房,木作榻榻米床铺,木皮从地面延伸至半墙,结合浅灰色墙面装饰壁灯与挂画
▲ 次卧,浅灰色背景墙装饰金色壁灯与不同尺寸的装饰画,配以木质家具,呈现小复古的精致空间
▲ 窗帘与床品保持色调一致,千鸟格靠枕增添时尚元素
▲ 主卧,设计师和业主双方在前期沟通中,业主很明确想要将卧室装扮的个性不失温暖
▲ 背景墙增加石膏线条,主色调延续蓝色为主题,让人留恋不已
▲ 床尾电视柜与床头柜造型一致,质感丰富,并延伸出梳妆台的机能
设计 | 青云居设计(杭州)
电话:0571-87655093
微信:18106530545
后台回复「青云居」可以看更多作品
媒体转载请注明装修33天并保留设计师联系方式
欢迎业主、设计师、装修公司免费投稿照片
装修33天商务合作微信:king194316
松爷店铺掌柜微信:yejia1702
青云居设计其他作品推荐,点击下图查看95平美式轻奢四室精致品质居家
实用装修指南
装修33天 🏡 实用装修指南
喜欢我们的文章就随手转发到您朋友圈吧
Go to "Discover" > "Top Stories" > "Wow"