点上方蓝字可关注 微信号:装修33天
▲ 原始建筑面积87平,改造后使用面积96平(增加隔层)设计费3万,半包造价11万,总造价50万,自定义混搭风
▲ 通风不及格,采光0分的户型,业主却钟情中线4米的挑高、巨大的天窗、还有南北露台,这些独一无二的条件给予公寓无限的可能
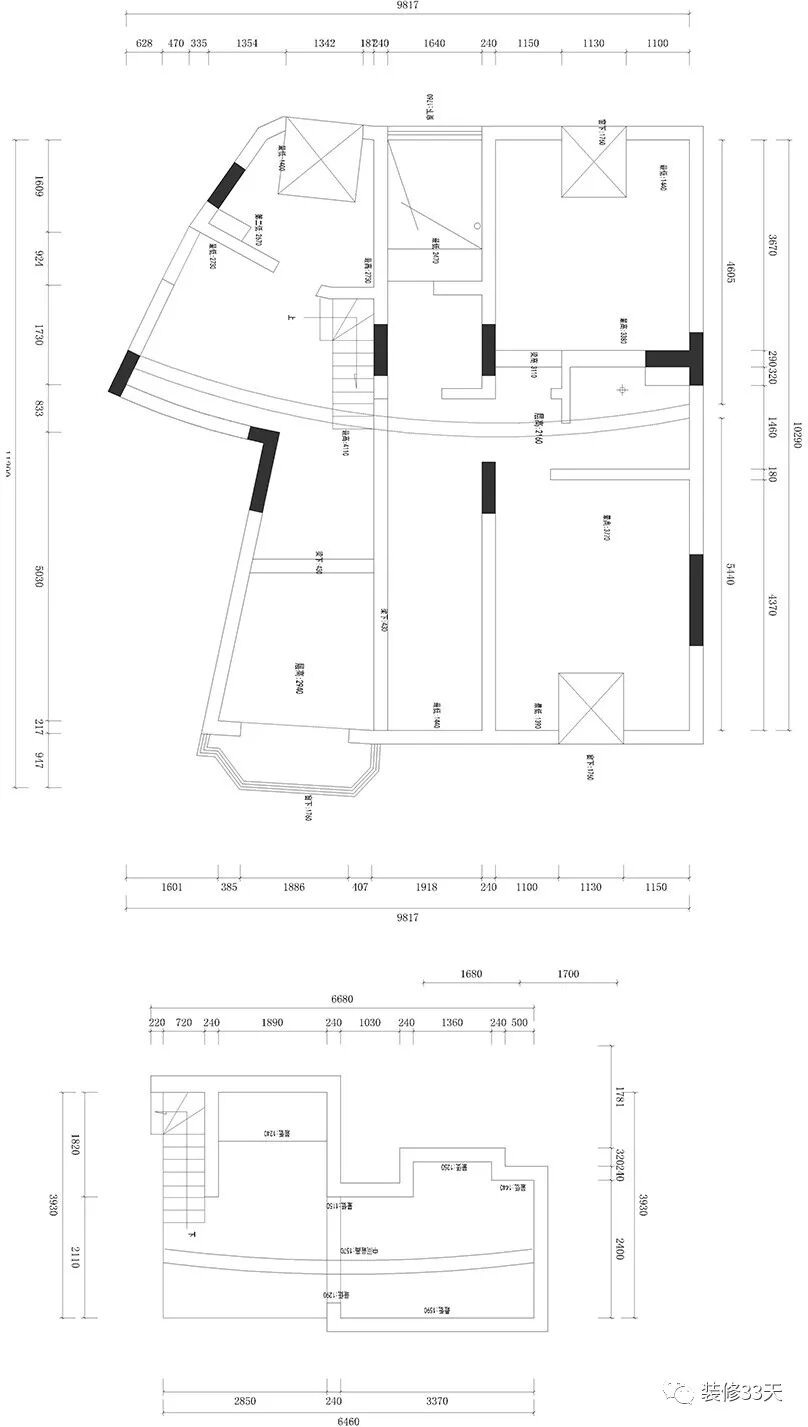
▲ 平面结构图
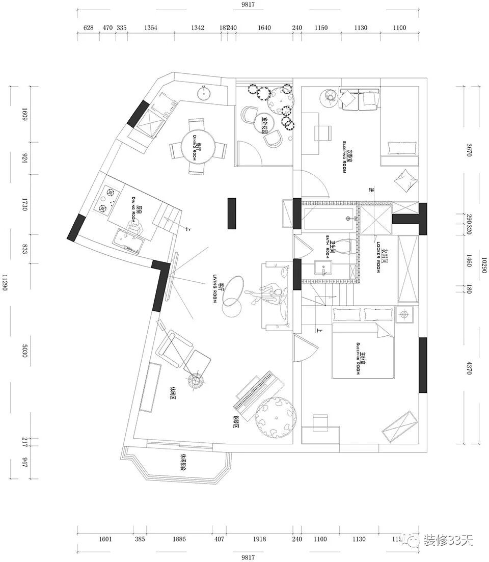
▲ 平面布置图
▲ 正对大门的承重墙柱,表面铲除打磨后直接上涂料,辅以玄关柜与挂钟做端景,左侧空间规划为西厨、餐区、洗衣区
▲ 根据不规则空间,打造西厨吧台,巨大的天窗可以让你在夜晚数星星
▲ 墙顶面交接处均做弧形处理,既有一种柔和的美感,也弱化墙顶面的边界,天窗内侧直角敲掉,扩大采光范围
▲ 西厨与餐厅相邻,与冰箱兼具餐边收纳的功能,圆形餐桌搭配圆形吊灯,让不规则空间动线更为流畅
▲ 在城市中本来就被拘束在一座座钢筋水泥里难以接触自然,把原本露台的隔墙用L型观景隔断替代,借景入室,感受自然
▲ 充分考虑到业主生活习惯,设计师将厨房一分为二,中厨架空设置在进门右侧的挑高空间,底下是一个巨大的收纳空间,充分利用空间高度
▲ 起居室整体通铺原木地板,搭配留白墙面,没有多余隔墙,没有任何吊顶,纵横交错的多条横梁未做额外遮盖修饰
▲ 大部分陈设也都是古朴的木质家具,来自于业主夫妻多年的收藏,多为旧时上海的流行样式
▲ 客厅,尽可能的保留原始房型的高度与通透感,同时解决进门右侧4米挑高空间的合理使用问题
▲ 改造前
▲ 沙发墙后是两个卧室和卫生间,透过门片造型做背景修饰,上世纪三十年代的法式书橱,Artdeco的圆茶几,两个多抽屉高柜,增添复古格调
▲ 露台并没有做成阳光房,却打造成难得的自然一角,露台上的地砖是特别淘来的陶砖,表面质地粗糙,有复古感
▲ 改造前
▲ 儿童房,大天窗赋予充足的采光,搭配粉白色基调,与木色家具,打造孩子的小天地
▲ 儿童房过道,大容量衣柜搭配弧形垭口,圆形小窗镶复古水纹玻璃,两个卧室形成空气对流,消除距离感,增加空间趣味性
▲ 主卧,根据斜顶规划就寝空间,搭配木质,利用床尾低矮处放置多斗柜
▲ 沿楼梯而上,是主卧增加的隔层衣帽间,轻盈优美的弧线形楼梯扶手和直角栏杆,刚与柔的结合带来独特的美感
▲ 主卧梳妆区
▲ 卫生间由白色、橙色、蓝色、黄色四种颜色构成,拥有3米多的挑高空间,将天花设计为弧形穹顶,2.5米高的墙面处做排风
▲ 洗漱区用水磨石台面、洞石马赛克等自然材料结合
▲ 湿区玻璃隔断待安装,地面用了条形地漏
设计 | 犀宅原创装饰(上海)
微信:18501680515(加微信请备注装修33天)
后台回复「犀宅」可以看更多作品
媒体转载请注明装修33天并保留设计师联系方式
欢迎业主、设计师、装修公司免费投稿照片
装修33天商务合作微信:king194316
松爷店铺掌柜微信:yejia1702
犀宅原创装饰其他作品推荐,点击下图查看87平长条形老房改造,改造前后对比
实用装修指南
装修33天 🏡 实用装修指南
喜欢我们的文章就随手转发到您朋友圈吧
Go to "Discover" > "Top Stories" > "Wow"