点上方蓝字可关注 微信号:装修33天
▲ 建筑面积135平,新房改造项目,风格定位采用偏向现代的手法,加入北欧元素,营造温馨空间
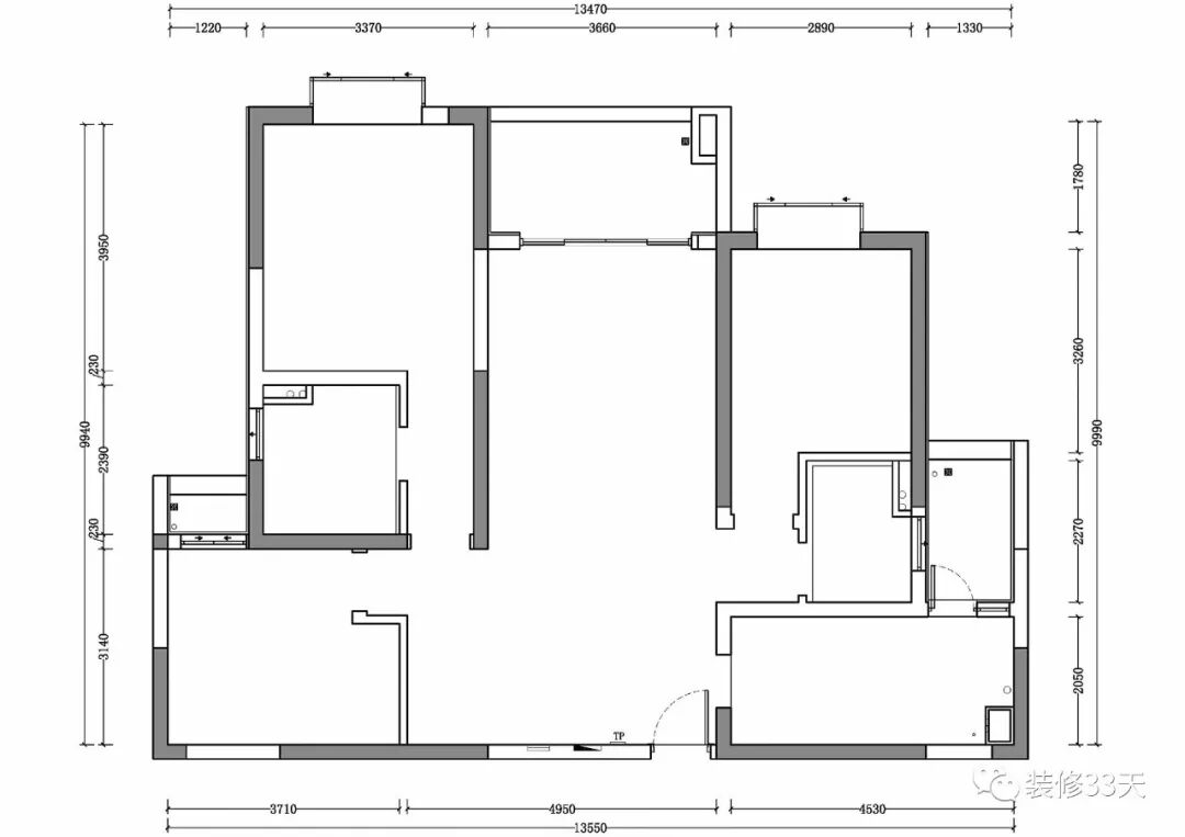
▲ 平面结构图
▲ 平面布置图
▲ 客厅整体采用黑白灰的基调,加入橘色系的活跃和木质的温润
▲ 沙发背景采用块面的手法,调节视觉比例,布艺与皮质等不同元素软装,做到装饰与舒适的平衡
▲ 白色大理石薄片上墙作电视背景,在一侧以展示架的形式呈现,与灰紫色墙面基础搭配出层次感
▲ 餐厅与活动室相连的墙面设置一组功能强大的柜体,集玄关柜,餐边柜与储物柜为一体
▲ 烤漆,哑光,大理石,多样材质与工艺混搭设计
▲ 餐厅望向客厅,开放式互通的格局,规划出宽敞明快的居家感
▲ 色块沙发背景一侧隐藏卧室的隐形门片
▲ 拆除餐厅与活动室之间的墙体,改用一整面折叠门的方式来分隔两个空间
▲ 收起折叠门,让活动室与餐厅串连
▲ 活动室兼作安静的书房,黑白灰基调中加入高饱和色调点缀
▲ 次卧,延续黑白灰格调,深色大床搭配白色衣柜,空间简约却显层次
▲ 黑色垂挂吊灯解放床头柜空间
▲ 主卧留给女主父母使用,木纹地板搭配留白墙面,家具与窗帘配色呼应
▲ 主卧现代风的家具搭配床头的造型台灯,黑与白之间搭配中性的灰,全是内敛,柔静的氛围
▲ 床尾设置多斗柜与梳妆区
设计 | 北岩设计(南京)
微信:18115159715
后台回复「北岩」可以看更多作品
媒体转载请注明装修33天并保留设计师联系方式
欢迎业主、设计师、装修公司免费投稿照片
装修33天商务合作微信:king194316
松爷店铺掌柜微信:yejia1702
北岩设计其他作品推荐,点击下图查看110平现代简约三室 黑白灰气韵舒适宅
实用装修指南
装修33天 🏡 实用装修指南
喜欢我们的文章就随手转发到您朋友圈吧
Go to "Discover" > "Top Stories" > "Wow"