点上方蓝字可关注 微信号:装修33天
▲ 建筑面积180平,总造价150万,潮范儿旅行达人,他的家全是老物件和木工手作,太有味道了,不过当然先得有钱
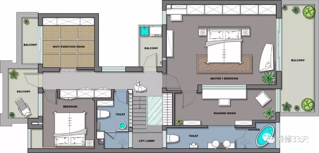
▲ 一层平面布置图
▲ 二层平面布置图
▲ 入户拆除原本的小储物间,让客餐厅开间变大,双面采光通透,进门右手边做了一个嵌入式到顶鞋柜,让入户空间更简洁宽敞
▲ 设计师将客厅能拆除的墙体全部拆除,大面积的落地玻璃窗让室内拥有良好的采光
▲ 木质元素带来温暖柔和的氛围,开放式的布局让空气与光线自由流通,整个空间都弥漫着「自然的气息」
▲ 深浅原木色系散落在各个空间中,这样原始而温暖的氛围能够和谐地容纳屋主夫妻从旅行过程中收集而来的老物件和老家具
▲ 皮革、织物、藤编和陶土等不同材质相搭配,不仅装饰质感丰富,也让人忆起生活最自然的模样
▲ 从印度房梁上取下来的雕件、用动物骨头和木头结合做成的木罐,欧洲带回来的各种烛台,天秤,每一件物件都保留着独属于它的美好记忆
▲ 在空间中还搭配很多种类的植物,每株植物都是屋主跑了很多苗圃市场,一株株挑选出来的,有了植物的空间,才更自然舒服
▲ 拆掉所以能拆的墙体,让空间双面采光,客餐厅互通,促进人与人之间的互动
▲ 餐厅,两三把皮质的椅子和藤编座椅放在一起作为餐椅亦是趣味十足,墙上红色木雕挂画来自柬埔寨
▲ 胡桃木大板餐桌和 Spain 岩板西厨放在一起构建成整个餐厅,黄铜吊灯,黑色吧台,粗犷自然与现代精致的混搭,提升整体空间温度
▲ 餐边,一整柜小物件都是男主人心头好,手工铜质品更是他的最爱,餐厅的手工吊灯以及餐边柜上的铜锅,都是他精心挑选的
▲ 谷仓门将中厨分隔开来防止油烟漫入客厅,西厨高端大气,中岛式的操作台,提供大量的操作空间
▲ 在楼梯间顶端开设一个采光通风天窗,玻璃扶手和镂空台阶增强环境的通透性,使得原本采光不佳的楼梯间得到光线补足,硬装造型上也更加轻盈
▲ 将楼梯间两侧的卫生间墙体拆除,改为木格栅加玻璃隔墙,将阳光引入卫生间
▲ 并在楼梯间两旁分别为每个卫生间开设了一个可通风的窗户,采光通风一起解决
▲ 儿童房,白色+原木色的基调,从柬埔寨带回来的挂毯成为整个小孩房最跳跃的色彩,为一个原本淡色素雅的房间中增添一些趣味性
▲ 利用主卧的开阔空间,在床背后设置开放式衣帽间,现代衣柜结合老物件的柜子,一点都不突兀,卧室空间的四周流动性,方便屋主拿取衣物
▲ 在角落位置女主人的化妆台,充分运用空间,达到空间最大化的利用,床边两个从泰国带回来的装饰柜,里面装着屋主从各地带回的香熏制品
▲ 主卧休闲一隅
▲ 原本衣帽间被打造成主卧独立书房,业主对老物件和木材情有独钟,手工木作活成为他最大的爱好之一,右边挂画购自一位日本艺术家,左边挂画是欧洲购入的老乐谱
▲ 纯白的卫生间,因楼梯的天窗,整个空间采光十足,改造后的卫生间有了独立的淋浴区和浴缸,真正的做到了干湿分离
▲ 浴室的双柱盆造型十分美观,搭配原木搁架的装饰细腻而时尚,藤编的脏衣篓,浴室柜上的绿植,新摘的枝条,满满的东南亚度假风
▲ 泡澡区,木雕墙镜搭配绿芽枝条,经历沧桑与新生的碰撞
▲ 将阳台打造成一个独立的小花园,栽种自己喜欢的植物,放上两把椅子和茶几搭成一个品茶的区域,墙上的装饰门散发独特魅力
设计 | 双宝设计(重庆)
微信:15223464710
媒体转载请注明装修33天并保留设计师联系方式
欢迎业主、设计师、装修公司免费投稿照片
装修33天商务合作微信:king194316
松爷店铺掌柜微信:yejia1702
实用装修指南
装修33天 🏡 实用装修指南
喜欢我们的文章就随手转发到您朋友圈吧
Go to "Discover" > "Top Stories" > "Wow"