点上方蓝字可关注 微信号:装修33天
▲ 建筑面积105平,总造价30万,入户左侧墙面挂一面椭圆形穿衣镜,上方配置双光源壁灯,营造入户氛围
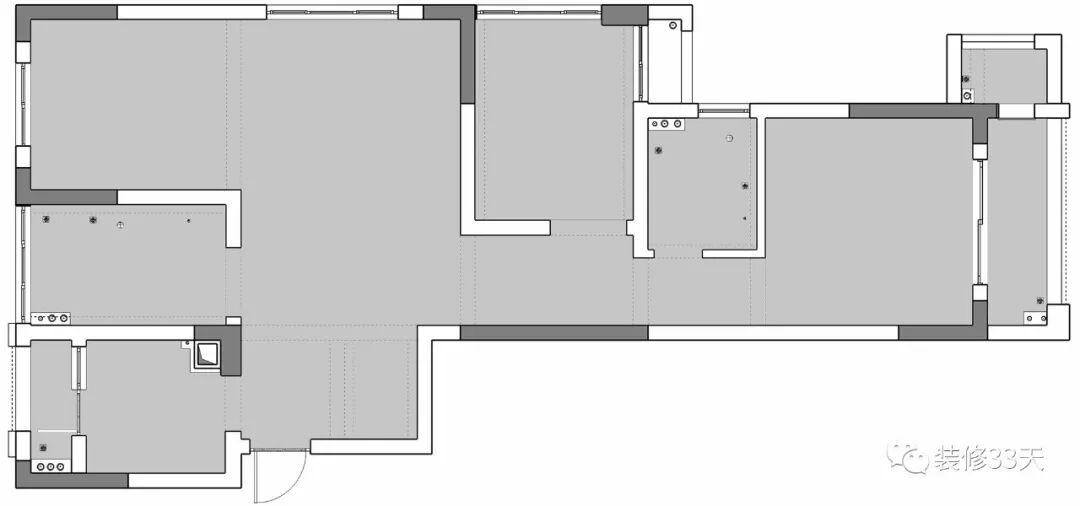
▲ 平面结构图
▲ 平面布置图
1.客卫做了干湿分区,独立了洗衣功能;
2.内移主卫、儿童房和过道的墙体15公分,大大增强了收纳功能;
3.外扩了厨房的阳台,增加整个厨房的容纳量;
▲ 入户右侧的空间则规划为就餐区,靠近入户门处设计置顶收纳柜,一侧留出开放式置物区与挂衣区
▲ 留白空间搭配原木餐桌椅+长凳,靠墙放置留出宽敞过道,以线造型的黑色鱼线吊灯,配简洁内敛水泥灰圆钟,使整个空间充满文艺气质,又压制木色比例
▲ 木纹餐桌上摆放日式餐具,轻简居家宜小酌两杯
▲ 餐厅望向客厅视角,整个空间没有多余的装饰和浮夸的元素,以简洁明亮的空间赋予业主舒适的居家体验
▲ 木色元素在留白空间中蔓延开来,搭配蓝灰色调的家具软装,比例拿捏得当,同时也让空间显得倍感轻盈
▲ 靠窗一侧放置蓝色躺椅与黑白灰格子脚凳,闭目养神或是休闲阅读皆宜
▲ 电视柜以内嵌两组柜体作造型,底部设计灰色大理石地台
▲ 客厅望向就餐区,以过道作场域分割
▲ U型厨房打造丰富的储物柜体,深色瓷砖搭配浅色柜门,错落台板设计更符合人性化设计
▲ 利用进入私领域的走廊,设计嵌入式收纳,制定的柜体中嵌入一列开放式柜体,内设光源,点亮过道
▲ 书房,靠窗设计转角弧线型写字台,在末端增加竖柜增添收纳
▲ 购自宜家的福勒克坐卧两用床,为书房设置小憩之处
▲ 儿童房空间不大,床铺靠墙放置留出合理动线,且孩子睡觉更安全,窗台下的空间打造成开放式书柜
▲ 主卧延续留白搭配木色元素家具,蓝灰色布艺软装调节空间色调比例
▲ 床背景辅以简框画修饰,黑色细边框与线性吊灯呼应
▲ 主卧设计置顶衣柜与白色吊柜,大大增加卧室的收纳空间
▲ 设计感与功能性兼具的原木梳妆台
▲ 卫生间,钻石型淋浴房合理运用空间,马桶背景铺贴拼色瓷砖,条件允许如果隐藏热水器后会显得空间更加简洁
设计 | TIDCASA设计(杭州)
微信:18258804803
媒体转载请注明装修33天并保留设计师联系方式
欢迎业主、设计师、装修公司免费投稿照片
装修33天商务合作微信:king194316
松爷店铺掌柜微信:yejia1702
实用装修指南
装修33天 🏡 实用装修指南
喜欢我们的文章就随手转发到您朋友圈吧
Go to "Discover" > "Top Stories" > "Wow"