点上方蓝字可关注 微信号:装修33天
▲ 使用面积135平,进门的宽敞保证餐厅的南北通透,自然的空气对流是房子生命力最有力的保证
▲ 原始结构图
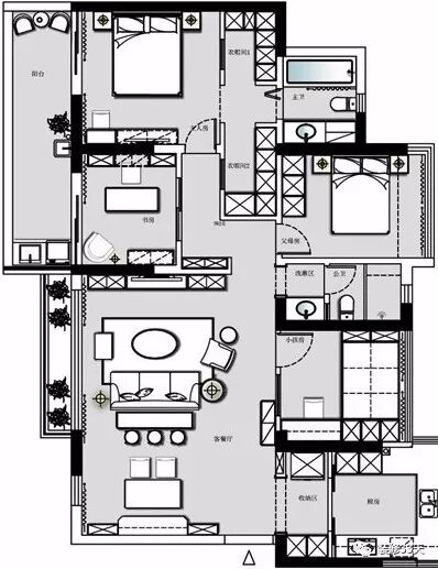
▲ 平面布置图
▲ 入户大门的正面对位是过道端景玄关展示墙,避开原始结构中的主卧门位
▲ 客厅,整体以黑白灰为主调,木质地板与茶几,顶面北欧风吊灯,为空间增加暖色调性
▲ 深灰色的粗边皮沙发,在砖砌吧台的靠背墙下,让空间有了精致的碰撞粗犷之美
▲ 电视柜虚实结合,采用深色艾格板点缀,加之左右上下大面积纯白色柜门衬托,更加有视觉延伸及冲击感
▲ 小孩房与客厅的墙体中间设计百叶窗,可以保证独立私密的同时,还可以让空间通风通透
▲ 设计吧台休闲区,让客餐厅保持互动,砖砌的吧台,立体感的承托,可以让休闲时光更加亲近自然
▲ 餐厅,鞋柜与卡座的并排式设计既节约空间又保证了整体的美观实用
▲ 把厨房转移到原生活阳台,让厨房享受到自然采光与通风,同时拓展出对开门冰箱与收纳柜的空间
▲ U型厨房,香槟色搭配白色柜门,台面错落与圆弧设计更符合人性化的使用
▲ 书房采用窄边框玻璃推拉门,自然采光及通风可以保证过道之需,过道尽头的收纳柜,在设计中留出一点开放格作端景
▲ 父母房,保留1米5的布艺靠背床空间,窗帘的藕粉色与枕头色呼应,小面积粉色搭配不影响空间,也满足母亲对于粉色的喜爱之情
▲ 主卧的床头背景采用深色肌理艺术涂料,卧室位置向西有西晒,采用清爽的深灰绿,缓解夏日西晒的炎热感
▲ 在床尾采用一组成品柜,具有电视柜、书桌、化妆区的功能
▲ 主卧中改造出2个独立衣帽间,最大化解决女主人对于衣物的合理收纳,每个衣帽间的木百叶窗,又能解决衣帽间采光不足问题
▲ 卫生间干湿分区,在隔墙中间保留一个固定玻璃窗,而这面玻璃则采用电子雾化科技,可以磨砂模式,也可以变成清玻采光
设计 | 迪尚设计(深圳)
微信:szdssj
电话:13590419225
后台回复「迪尚」可以看更多作品
媒体转载请注明装修33天并保留设计师联系方式
欢迎业主、设计师、装修公司免费投稿照片
装修33天商务合作微信:king194316
松爷店铺掌柜微信:yejia1702
迪尚设计其他作品推荐,点击下图查看现代风格居家大宅 三代同堂惬意生活
实用装修指南
装修33天 🏡 实用装修指南
喜欢我们的文章就随手转发到您朋友圈吧
前往“发现”-“看一看”浏览“朋友在看”